Paso 1: Contrachapado corte a medida

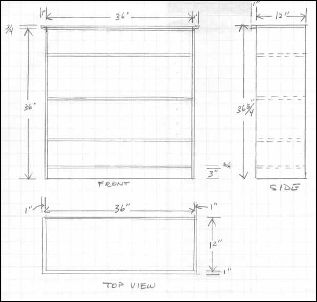
Hay una tapa separada que sobresale por la librería 1" en los laterales y frente. El borde posterior de la parte superior quede a ras con la parte trasera de la librería. Las principales medidas 38" de largo por 13" de ancho y está hecho de 3/4" madera contrachapada de abedul Báltico.
El es un zócalo que también necesita ser cortado a 3" de ancho por 34 1/2" de largo.
Cortar las tablas con el grano de madera a lo largo de la longitud de los tableros. Una sierra de mesa proporcionará los cortes más seguros y más precisos pero también funcionará una sierra de mano eléctrica con un borde recto. Los cortes deben ser precisos o los componentes no encaja correctamente.