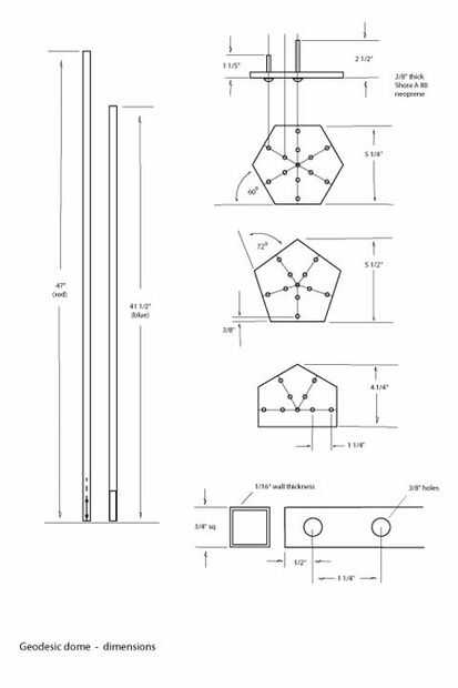
Paso 2: Dimensiones y plantillas


-puntales de x 35 47" largo (rojo)
-30 puntales x 41 1/2" de largo (azul)
-20 x espacios concentradores de Manera6
-12 x espacios de 5way hub
-20 x 4 espacios en blanco de la eje
-130 madera clavijas 3-4" de largo
-El aluminio para los puntales rojos y azules se puede obtener en línea en McMaser Carr, o en un mayorista de aluminio en aproximadamente la mitad del costo. Buscar lugares que venden "aluminio extruido" y también comprobar para ver si te corte a la longitud para usted. Si no, usted puede cortar en la chuleta de la sierra.
-Madera rip para los partes movibles por lo que se deslizan fácilmente en los puntales y luego corte los cerca de 3 pulgadas de largo. Pintar y lijar antes de ensamblar para que aparezcan más limpia, como un inserto de plástico, no sólo un final pintado de un palo. Cuando pegue en los insertos, usar epoxy de 5 minutos y sólo dab un poco a cada lado de la estufa antes de pegarse en el puntal. Si están apretados, empuje contra la pared o si es muy apretado, sólo lanzar el puntal en el piso, como una lanza para apretarse el inserto en. Traté de evitar meterles porque las costillas parecían como que se dobla.
-Perfore los agujeros de los puntales en el taladro utiliza un buen maquinistas reprimieron a la mesa. Acaba de poner unas cintas con una marca en él para mostrarme dónde poner el primer agujero y luego se deslizó la costilla al borde de la mordaza para el otro. Asegúrese de que el extremo de la costilla es compatible por lo que los agujeros no comienzan a recibir más y más en ángulo. Tenga muy cuidado al taladrar los orificios, que son un poco más grandes que los tornillos, pero si son demasiado lejos aparte no se ajusta y basura, o si no se centran correctamente, se ven muy mal.
-Lije y quite las rebabas de todas las partes metálicas para deshacerse de cualquier cosa que puedan lastimar a los niños.
-El material de la hoja de goma para los ejes y los casquillos puede obtenerse en McMaster Carr. Es "neopreno 80 shore A" (shore A 80 se refiere a la dureza, y neopreno es el tipo de caucho) cortar la goma con un cuchillo o cuchilla OLFA - broche de presión si se corta demasiada goma con las herramientas eléctricas, que será apagado el fuego alarma. Cortar con un cuchillo funciona mejor si curva Abra el corte como vas por lo que hay menor fricción de la cuchilla. Tiene un montón de hojas extra prácticas.
-Hacer plantillas para perforar eje y casquillo de por lo menos 1/2 pulgada de madera contrachapada y use una pinza para sostener la plantilla. Asegúrese de que utilizar una tabla de sacrificio, porque la goma realmente tira el taladro hacia abajo cuando es a través de.
-Es mucho más fácil y más agradable para los pernos de los hubs de pintura antes de que se ensamblan.
-Los pernos en el caucho es la parte más ardua del proceso. En algún momento usted necesitará conseguir iniciado girándolas con un par de apretones de Vice. También simplemente puede presionar con los pulgares, pero que empieza a doler después de cerca de 5. He tenido algunos éxitos con el agujero de posicionamiento sobre un boquete en la tabla y martillar los tornillos de esa manera. Sin el espacio, el caucho rebota demasiado y nunca va. También puede experimentar con el tamaño de los orificios, como taladrar un agujero de 1/4 de pulgada a través de goma nunca produce un orificio de 1/4 de pulgada.