Paso 1: Planificación y elaboración de


Ya que mi padre y yo no habíamos hecho cajas antes, nos aseguramos no para, mediante la planificación y el diseño de dibujo.
La planificación no es necesaria, pero evita errores molestos.
Planificación
En primer lugar, elegimos los materiales. Ya que no tenía ganas de pasar un montón de dinero, pero todavía necesitan un producto fuerte, estuvimos de acuerdo sobre el uso de madera contrachapada delgada 3mm (~ 0,12"), junto con algunos contrachapado de 15 mm espesor (~ 0,59").
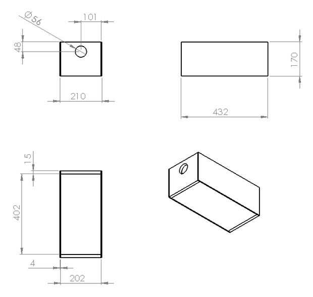
OBS! -El dibujo no ajusta a las dimensiones reales! Las placas laterales son IRL de 3mm y 4mm en el dibujo.
Después de seleccionar el material deseado, estuvimos de acuerdo en tres tamaños diferentes para nuestras cajas. Puesto que queríamos guardar todas las clases de basura ' n ' stuff en ellos, sólo sería adecuado hacer un pequeño, un medio y un modelo grande. Sólo verás el modelo pequeño en este instructable, puesto que no hemos empezamos a producir los más grandes.
Dibujo
El dibujo fue hecho en un programa de CAD. Papá dibujó diferentes combinaciones de los materiales y diferentes tipos de esquinas.
Con los diferentes diseños delante de nosotros, podríamos encontrar fácilmente el mejor. (Mirar las fotos)
Después estuvimos de acuerdo en el mejor diseño, continuó el dibujo, haciendo un dibujo de la caja 3D.
Si desea hacer un par de estas cajas, no dude en utilizar el diseño! (Las cajas están medido en m m. 1 m m ~ 0,04")