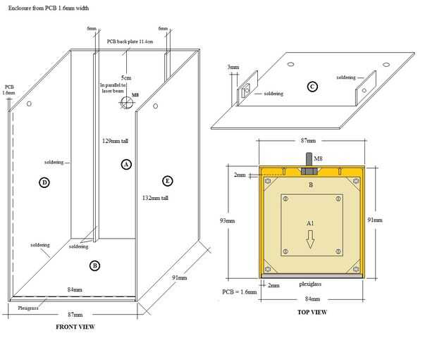
Paso 17: Recinto de PCB:






























Está hecho de cinco PCB de cobre de un lado, una pieza de plexiglás de 3mm y un tornillo hexagonal M8.
El perno con la tuerca de mariposa en la parte posterior de la caja puede estar en uso con un soporte de pared (L) en la parte inferior puede ser montada en un trípode de cámara.
Si el recinto tiene la distancia requerida por la parte inferior del soporte pueden girar 360 grados siempre con la barra láser en posición de bloqueo. Esta manera de dibujar líneas diagonales es fácil.
El tornillo hexagonal M8 del recinto debe estar nivelado con el punto centro del láser.
El recinto es 2mm más ancho de izquierda a derecha y detrás como una protección en caso de circuito tipo con las placas de láser.
Cuatro separadores hexagonales se atornillan a la pieza inferior de la caja con la construcción de todo laser seguro y de la marea y unas dos separadores hexagonales están atornillados en la tapa de la caja.
La tapa tiene dos tuercas a los lados uno en la izquierda y un otro de la derecha. Por uso de la fuerza / atornillar los tornillos Phillips de M3 desde el panel de la izquierda y lucha del recinto que será la placa frontal de plexiglás apretar en su lugar.
La placa frontal es de plexiglás. Utilice el archivo .cdr para cortar el plexiglás en una máquina de corte láser.
Hay tres dibujos dándole las dimensiones y también mostrando cómo montar la caja. Aunque tomó todo el esfuerzo para dibujar las piezas tan precisas como sea posible, por favor contar con sus propias medidas al cortar las placas PCB.
Si por alguna razón las piezas de PCB son más grandes de las dimensiones específicas cuando se utilizar un taladro con un disco de corte y corte el exceso PCB. Después de que utilice un papel de lija Nr.: 100 para suavizar los bordes.
Descargar e imprimir todos los archivos.












