Paso 2:

Tomar a las grapas.
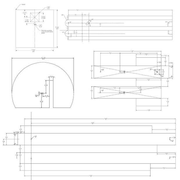
Imprimir en una impresora de blanco y negro del plan a escala 1:1 en papel A0.
Utilizar como plantilla para cortar las piezas de cartón y madera. Consejo: use un punzón o aguja de tejer para transferir los dibujos a la cartulina. Coloque el papel sobre el cartón y agujeros en las esquinas e intersecciones. Utilice un cuchillo de corte de caja y una larga recta para cortar el cartón. Antes que dobla la cartulina, marcar el cartón con un cuchillo embotado de la mantequilla.