Fuego de Buzz (8 / 24 paso)

Paso 8: Haz y círculo

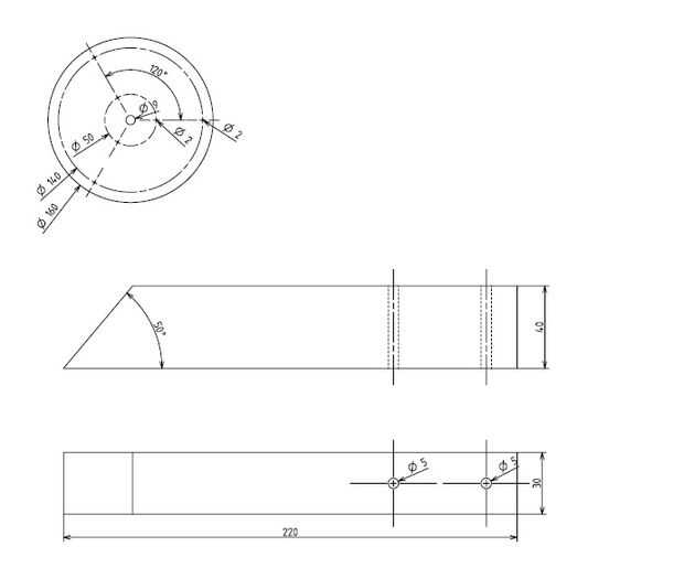
  • Cortar una placa MDF en un círculo de un diámetro de 0,16 metros.
  • También tomar una viga de madera de 1 metro y corte como se puede ver en el primer boceto.
  • atorníllelos juntos para que la pieza circular se encuentra en el centro sobre la viga de madera.

Artículos Relacionados

Pistola de Airsoft carga Shell de Buzz Bee doble tiro dardos escopeta de

Pistola de Airsoft carga Shell de Buzz Bee doble tiro dardos escopeta de

en primer lugar, esto no es completamente mi idea.  Creo que mi diseño es único, pero en caso de que no es así, no estoy tratando de todo lo que he visto en línea copiar exactamente.  Mi propósito es mostrar un diseño diferente y posiblemente mejor y
Bailando en el fuego

Bailando en el fuego

¡ Hola! Somos Stan Lauren y Obed y somos estudiantes de Howest, Kortrijk. Estamos en nuestro segundo año del estudio diseño de producto Industrial. Para nuestro curso de diseño y prototipado tuvimos un trabajo en grupo, en asociación con Bolwerk. Est
Detección mediante sensor Arduino y llama de fuego

Detección mediante sensor Arduino y llama de fuego

Sensor de llama está integrada a arduino para detectar la llama. LED y zumbador son conectado a arduino para indicar la llama.Componentes de hard ware necesarios:-1) sensor llama (salida analógica)Arduino 2)3) tablero de pan4) LEDZumbador 5)6) cables
Cargador smartphone accionado por el fuego

Cargador smartphone accionado por el fuego

Portátil, compacto y ajustable generador emergencia termoeléctrico.Fondo:La razón de este proyecto era para resolver un problema que tengo. A veces hago varios días de trekking/mochila en estado salvaje y siempre traigo un smartphone con GPS y tal ve
Buzz-bombas/helicópteros

Buzz-bombas/helicópteros

Buzz-bombas/helicópterosPaso 1: aquí esMuy popular vuelo fuegos artificiales, la bomba de zumbido o Helicopter.
Both básicamente el mismo dispositivo, pero el Buzz-bomba explota un informe ruidoso en el ápice de su vuelo. Hay un gran número de vari
Algunos nerf Buzz vio juegos

Algunos nerf Buzz vio juegos

aquí están algunos juegos he pensado que subiendo ayer bien estaba rodando mi hermana con mi nueva moda de nerf vieron no i no es media tenía mis nuevos incendios de huelgaPaso 1: Buzzsaw Basket ball necesita su arma de Buzzsaw, tres bolas de balísti
Receta de Biryani del pollo de la capa | Cocinada a fuego lento arroz y pollo Receta

Receta de Biryani del pollo de la capa | Cocinada a fuego lento arroz y pollo Receta

Si eres un amante de la comida de la India, prueba esta deliciosa receta en casa :)Biryani o Biriyani es un sabrosa cocinada a fuego lento plato 'Arroz, especias aromáticas y carne' y a veces con verduras...Esta receta es ' capa Biryani de pollo ' (e
Impresionantes fuegos artificiales lanzados desde el aeroplano de RC

Impresionantes fuegos artificiales lanzados desde el aeroplano de RC

Si desea encender remotamente los fuegos artificiales de un aeroplano controlado de radio, hay mucho que necesitas saber. Por no mencionar que tienes que aprender a volar estas cosas. Vamos a hacer la suposición de que eres un piloto experimentado, c
Habilidades rápidas #10: Cómo comenzar un fuego con corteza de abedul

Habilidades rápidas #10: Cómo comenzar un fuego con corteza de abedul

Hola esta semana finalmente pasamos a una nueva parte de la serie de habilidades rápida. En éste y los siguientes episodios veremos métodos para iniciar un fuego con tipos naturales y artificiales de Yesca.Primero es la corteza de abedul popular y en
Lámpara Fly de puerta fuego

Lámpara Fly de puerta fuego

Aquí mostrará usted cómo hacer tu propia lámpara de mosca de fuego como se muestra en la imagenPaso 1: materiales Este es un proyecto simple 20 min pero emocionante y un gran pedazo de conversación para fuera o su jardín...Todo lo que necesita es una
Proyecto de ingeniería de Ruben tubo fuego guadaña / Prop

Proyecto de ingeniería de Ruben tubo fuego guadaña / Prop

Tubo o simplemente fuego tubo de Ruben es una puesta a punto en el que las llamas se convertirá en mayor o menor según la frecuencia del sonido en el tubo. Esencialmente, las llamas actúan como un osciloscopio para el sonido en el tubo.En este proyec
Brillante fuego sales (skyrim)

Brillante fuego sales (skyrim)

He visto un montón de cómo de hacer fuego sales pero no he visto ninguna que realmente brillan. Así que me senté y vino para arriba con uno para todos los fans y los que sólo quieren algo a la luz de la noche. Este es mi primer instructable para que
Espada ropera Fuego Retro modelo plano

Espada ropera Fuego Retro modelo plano

Tome un viaje de nuevo a los años cincuenta con este avión de modelo de balsa de estilo retro. Revive el olor del cemento balsa y sonido maravilloso y lugar de su propio mini jet sobre el campo de vuelo.Este diseño se basa en el 50 de Fuego un Jetex
Tornado de fuego simple DIY

Tornado de fuego simple DIY

Esta es una guía sobre cómo hacer un Tornado de fuego en 5 sencillos pasos. El propósito de este modelo cinético, es demostrar el movimiento de un tornado a través de las imágenes de una llama, así como mostrar el efecto de Magnus. Este es un diverti