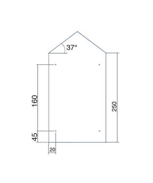
Paso 3: Preparación de la placa inferior.



Cortar la placa inferior de la placa de poliestireno utilizando las dimensiones indicadas
Después de que se perfore 4 orificios en la placa de poliestireno. Asegúrese de que usted ponerlo en la carcasa de PP como bien para que los orificios queden alineados perfectamente una vez haya terminado la perforación.
Una vez que hayas hecho esto puede colocar la placa inferior de la carcasa polipropileno plegada utilizando la cinta de transparente.