Paso 16: Las piernas



Modificar las seis patas como se muestra en el diagrama y fotografías.
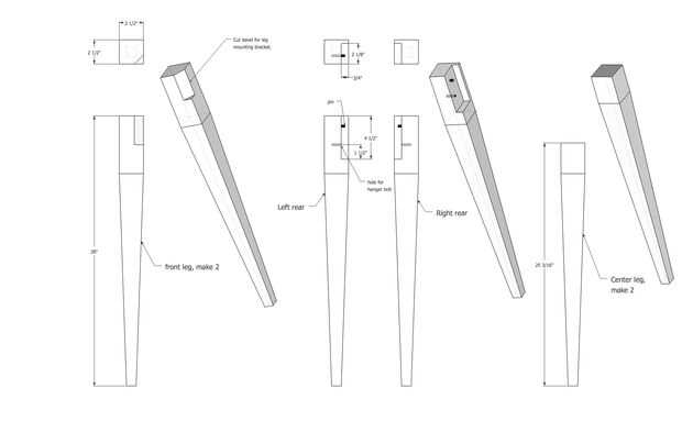
Las patas delanteras deba recortarse un poco para hacer espacio para los soportes de la pierna. Taladre los agujeros para los pernos de hangar que viene con los soportes e instale los pernos de suspensión.
Perfore los agujeros en las patas para recibir los pernos de suspensión. Éstos deben ser más pequeño que el diámetro de la parte del tornillo de los pernos, pero lo suficientemente grande como para que la madera no partido como conducir el perno de suspensión en.
Encontrar la manera más fácil para conducir los tornillos de la suspensión es Enrosque las dos tuercas con una arandela entre ellos en el perno. Apretar las tuercas juntas y luego utilice una llave para la tuerca exterior, que conducirá el perno de suspensión. Las dos tuercas aflojar fácilmente cuando haya terminado.
Las piernas medianas simplemente necesitan ser acortados por 2 13/16".
Las patas deben tener un bloque rectangular de madera quita como se muestra en los diagramas. Usé un router y un cincel para este trabajo.
Coloque las patas en la parte trasera y el ajuste de prueba. Perfore agujeros en las patas traseras para dar cabida a la clavija de perno y alineación del hangar. Transferir la ubicación exacta de estos agujeros de la parte trasera a las piernas puede ser complicado. Medir precisamente, o utilizar espigas centro transferencia tapones , estos se pueden encontrar baratos de un número de fuentes.
Instale pernos de suspensión en las patas traseras. Perfore los agujeros en las patas para recibir los pernos de suspensión. Éstos deben ser más pequeño que el diámetro de la parte del tornillo de los pernos, pero lo suficientemente grande como para que la madera no partido como conducir el perno de suspensión en.
La forma cónica y sus clavijas de alineación de arena que caben fácilmente en los orificios de la parte trasera. Puede que desee probar ajuste un par de veces antes de pegar las clavijas en las patas.
Instale las patas a la parte trasera Deslice los pernos de suspensión y clavijas y sus agujeros, luego asegure con una arandela y una tuerca desde el interior.
Cuando las patas se unen a la parte trasera, es un ajuste apretado, por lo que tendrás una llave con una extensión.