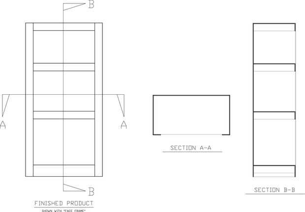
Estanterías de cartón, como un carpintero

si usted está buscando un divertido proyecto de carpintería/carpintería pero falta las instalaciones o iniciativa para acumular las herramientas y habilidades, este proyecto le dará la misma sensación de satisfacción por un trabajo bien hecho. He tomado el tiempo para crear dibujos de CAD a explicar cómo hacer un cuadrado de cartón de la alineación, cómo colocar las piezas, incluso cómo obtener grandes resultados plegable. Por favor proporcionar un montón de sugerencias para el próximo - han construido muchas piezas, pero tienen 000 práctica enseñar a otras personas. Estoy tratando de atender estos instructables para novatos e inteligentes ingenieros por igual. Teniendo esto en cuenta, no dude en avisarme si he dejado información clave o si estoy hablando con usted como usted es "5". Esperamos que disfrutes!

Artículos Relacionados

Muebles de cartón como insignia de Apple.

Muebles de cartón como insignia de Apple.

Soy "adicta" de los productos de Apple y también como proyectos de bricolaje, especialmente cardboarding. Por lo tanto, es lógico para mí hacer un día que algo vinculado por estas 2 cosas.Después de algunos pequeños carboarding proyecto, decidí
El estante cd de cartón

El estante cd de cartón

esta instructable le mostrará cómo hacer un estante de cd que cada vez que tienes un nuevo cd que se puede solo construir un nuevo nivel y lo pegan en y tienen más espacio para otro cd. Un proyecto bastante fácil y rápido hacer a menos que usted tien
Estantería de cartón grieta

Estantería de cartón grieta

Cran·NYˈkranē / Sustantivoun espacio pequeño y estrecho o apertura.Tenemos una extraña grieta poco en nuestro armario que parecía imposible para adaptarse a cualquier cosa en. Era extremadamente estrecho y alto (9 "x 12" x 5'). Al mismo tiempo,
Estantería de cartón reciclado - laser de corte y trabajo hecho a mano

Estantería de cartón reciclado - laser de corte y trabajo hecho a mano

Esta vez, decidí construir una estantería grande, combinando el arte de diseño y de la mano de ordenador.Algunos de corte manual pueden hacerse con una máquina de corte láser para máxima precisión.La construcción de articulaciones y columna vertebral
Estantería de cartón 'Elementos'

Estantería de cartón 'Elementos'

si quiere comprar estos, cuestan 120 USD para cuatro (Kartongroup). Demasiado caro, propongáis, así que les hice yo mismo.Paso 1: Lo que usted necesita You need:-un trozo grande de cartón sólido-pluma-cortador-pegamento de madera-reglas-tijerasPaso 2
¿V.1 modular de estanterías de cartón

¿V.1 modular de estanterías de cartón

tiene un montón de cartón? ¿Necesita estantes más que nadie nunca ha necesitado estanterías? Hacerlo!... y que sea modular.Este proyecto es de nuestro trabajo en Diyarbakir, Kurdistán, durante marzo de 2013; Ver más aquí.Herramientas:Algunos cuchillo
BRICOLAJE estantería Mini cartón

BRICOLAJE estantería Mini cartón

concepto. Un mini estante de cartón. Se puede personalizar para cualquier tamaño y la forma. También puede agregar sus propias características a él. Es bastante fácil y rápido de hacer. Fui con un __ torpe / *** forma.
¿Hacer una estantería de cartón

¿Hacer una estantería de cartón

tiene demasiados libros? ¿Tienes una caja? Entonces tienes los ingredientes principales para hacer una librería barata.Nota: Casi todos los pasos son acompañados con imágenes.Imagen de una estantería acabada abajo.Paso 1: Materiales necesariosPaso 2:
Cómo transformar una estantería en un armario / como Metcoex un librero en un armario

Cómo transformar una estantería en un armario / como Metcoex un librero en un armario

aquí es un tutorial simple para conseguir una librería en una nueva vida evitando tirar a la basura... disfrutarlo...reutilizar, reducir, reciclar :)Aqui dejo un tutorial con el cual se puede dar una vida nueva un librero de las Naciones Unidas, evit
Fácil estantes de cartón

Fácil estantes de cartón

el proyecto debe ser muy rápido para cortar y armar con cartón de desecho si haces los dobleces adecuadamente y también si recibe la orden de operaciones adecuado.  La primera vez que hice esto, las piezas de cartulina endebles tiene clase de wily du
Estantería circular de cartón

Estantería circular de cartón

este diseño está basado en un apóstrofe. Después de algunas peticiones para un tutorial en esta estantería de cartón con curvas (inspirado en Patricia Dessoulles), he decidido tener un ir en él.Cubrí con papel nacarado y tardó sólo dos días para term
Marcos de cartón tabla - estante -

Marcos de cartón tabla - estante -

Hola! El propósito de esta creación fue aprovechar el espacio de la pared para poner algunos juguetes en el armario del lío (salón del juguete) de manera organizada y fácilmente accesible. Espero que lo disfruten.Vídeo:Paso 1: Materiales necesarios:-
Como hacer florero usando cartón

Como hacer florero usando cartón

Creamos el florero con cartón como un material. Utilizamos Autodesk Inventor, Make 123D y planos de corte de cartón para la fabricación de las piezas. Unir las piezas y pintura de aerosol de las partes.Puede utilizar diseños adjuntos si usted quiere
Estante de vino de cartón

Estante de vino de cartón

almacenar hasta 9 botellas en este asombroso botellero. Barato y muy fácil de hacer.Indicaciones de seguridad: este instructable utiliza afiladas herramientas. Tenga cuidado de usarlos. Si no está seguro de cómo utilizar, no continúe. NO apto para ni