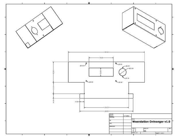
Paso 8: Diseño y edificación el cubierta del receptor. (segundo intento)


la única diferencia es que yo dibujo del metal de hoja en lugar de extrudado.
Después de esto se hizo, fue un trabajo sencillo para cortar hacia fuera y doblar 90 deshonra.
Para trabarlo en su lugar utilicé 2 remaches de aluminio.
(Nota) Dimensiones en mm