






Materiales:
Computadora con programas de Autodesk Inventor y Corel Draw 10
Impresora láser
2' x 1 hoja de madera de 1/8" de espesor
Papel de lija (grano 30, grano 600)
Revestimiento de madera
Instrucciones:
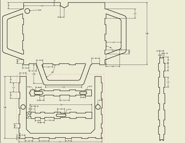
1. obtener la imagen adjunta (una de las dimensiones)
2. crear archivos de Inventor de cada parte individual
3. colocar cada parte en el archivo de una hoja y guárdela como un archivo DXF
4. abrir el archivo en un lugar y Corel Draw 10 en una hoja 24 "x 12"
5. Ponga la hoja de madera en impresora láser e imprimir el archivo (Color: negro, velocidad: 2%, intensidad: 100%)
6. pegue pedazos para que se vea como la imagen final
7. cuando el pegamento se seca, lije todo producto con papel de lija de grano 30
8. frente aerosol de soporte con revestimiento de madera y esperar hasta que se seque
9. arena todo producto con papel de lija de grano 600
Sugerencia: Añadir una capa de espuma en el interior de la caja para mantener el iPad resbale
Diseñado, con láser y modificado por: Mike Hanna y Derek Ellstrom Nishidh Patidar