Paso 7: Paso 7: Pin juntos


Es Semi arbitraria pero stat en mis rodillas y medido hasta mi nivel de los ojos. Hice esta medida donde estaría el borde inferior del orificio de la ventana. Fue a los 35 pero he añadido una pulgada para hacer 36. Mi pensamiento era que esto sería una buena altura para un padre jugar junto a su hijo sin inclinarse. Si los juegos del niño en su propio o es demasiado pequeños llegar a la ventana el teatro entero se puede mover hacia abajo la longitud extra en la parte inferior hasta y. Una línea de ojos superior permite también el juguete crecer con el niño. Trate de accesorio a un niño de ocho años un espacio hecho por un niño de dos años. No tan impresionante.
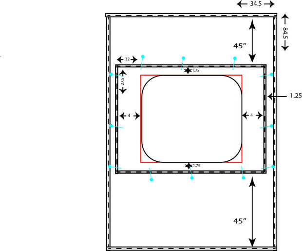
Por lo que es el borde inferior del orificio de mi ventana en el 36"
2. la medida 36" desde el fondo de sus pernos de rectángulo principal lugar para marcar su medida
3. ahora usted necesita averiguar cómo centrar la ventana de tela horizontalmente
para calcular hacia fuera.: (ancho de la tela principal - ancho de ventana de tela) / 2
Usé (84.5-32) / 2 = 1,25
4. con el derecho Coloque a la tela de la ventana en la parte inferior de la Plaza del 24' es en el punto marcado
Un pequeño truco es a temporal doble la tela de la ventana a lo largo de la línea de agujero inferior para coincidir con las marcas.
5. Centro de la tela para que puedan ver 1,25 pulgadas del rectángulo principal en cada lado.
6. Asegúrese de que cada cosa sean plana y recta y firmemente prender a la tela de la ventana a su rectángulo principal en todos los bordes.			













