Paso 2: Diseñar y rediseñar







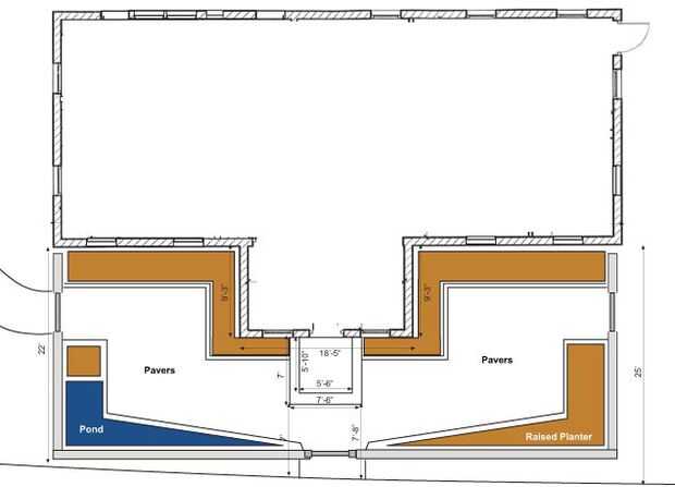
Apenas cómo usted mida dos veces y corte una vez, planee su diseño dos, tres o diez veces. Sus primeros pensamientos o ideas no suelen ser los mejores. Sé lo que originalmente pensamiento sería perfecto para el patio y estanque hubiera quedado corto el diseño final que hemos construido. A continuación se muestran algunos de mis diseños originales que no construimos.
Idea: Aquí está una técnica para ayudar a visualizar físicamente el estanque y las paredes; tomar estacas o varillas y colocarlos donde estarán las paredes. A continuación, ejecutar líneas de cadena en las alturas de las paredes. Hacer esto y ver el área cerca, bajar por la calle o soporte y ve a una distancia. Ver lo que funciona para usted y mira a la derecha en su entorno.
Para dibujar y dibujar más, divertirán con él porque la planificación es una gran manera de construir la anticipación para su proyecto.