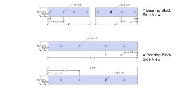
Paso 2: Eje x y eje y rodamiento de bloque



Corte 2 piezas en la mesa Sierra 8 ½ "x 1 ¼" x 13/16" espesor
para el eje x:
Cortar 2 piezas de 4 "x 1 ¼" x 13/16" espesor para el eje y
Piezas de la pila y abrazadera
taladro atravez de los agujeros exteriores con broca forstener de 22mm
Con ellos todavía sujetan el taladro un agujero de 1" 1/8" por ahora uso un 5/8" bit y taladro adecuado a través de
primera capa y con un 5/16" bits continuar hacia abajo a través de la capa inferior.
Perforación de esta manera ayuda a mantener sus centros más precisa. En este orden con un punto de brad o forstener poco deja una marca de centro donde puede proceder con el menor tamaño del taladro.