Paso 1: diseño



Desker doble está diseñado para maximizar la eficiencia de espacio sin crear las condiciones de trabajo incómodas para los usuarios. El escritorio de pie extiende encima de la mesa de altura normal pero no tanto que arroja sombra sobre el habitante de la litera de abajo. El espacio debajo de la plataforma podría ser utilizado para almacenamiento de información, pero tenemos nuestras prioridades directamente así que es utilizado como un lugar de siesta.
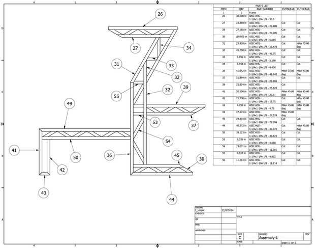
Antes de comenzar la fabricación construí un modelo de madera de pequeña escala y un modelo CAD 3D Inventor dimensiones y generar una lista de corte.













