Paso 5: Sugerencias para la instalación


Para motores de gasolina, esto puede conectar al circuito de la bomba de combustible o circuito de encendido. Así, tampoco no habría ninguna fuente de combustible o chispa a las bujías. El motor entonces dejará de funcionar.
Para motores diesel, puede conectar este en el circuito de válvula de medición de combustible. Válvula dosificadora de combustible se encuentra en la bomba de alta presión montada en el motor sí mismo.
En este instructable, el dispositivo se conecta a la bomba de combustible. Aquí están los pasos:
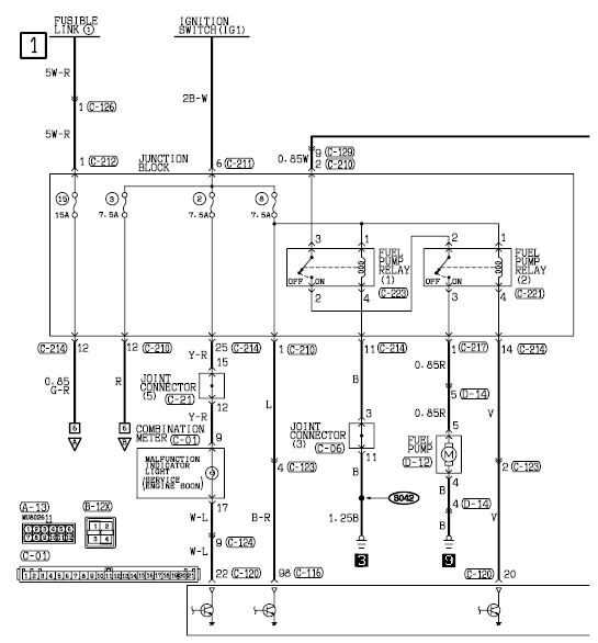
1. Consulte el diagrama de cableado para determinar que parte del circuito es fácil para mí conectar el dispositivo.
2. Localice el arnés de la bomba de combustible en el piso del vehículo. Corté el cable de suministro (el rojo del alambre antes de la bomba de combustible, ver el esquema adjunto) y conecte el otro cable que luego puedo conectar al relé. Uno de los cables se conectarán a la terminal común del relé y la otra se conectará al terminal normalmente cerrado (NC) del relé. De esta manera, si el dispositivo está desactivado, la ruptura de la línea conectará dentro de la conexión del relé. Si el dispositivo está activo, el relé se activa y abre el contacto NC del relé, parar la bomba de combustible. Suministro de combustible para el motor será de corte y motor se detendrá.
3. Conecte la alimentación a cualquier fuente de tensión que existirá sólo cuando está encendido "ON".
4. Conecte la fuente de 12V el relé.
5. Conecte el cable de disparo del relé a la Junta de control.
6. Conecte el disparador e instale en un lugar oculto que sólo se sabría.
7. cargar el software usando el IDE de Arduino.
Nota: Asegúrese de quitar la alimentación de 12V del vehículo o desconecte el dispositivo del vehículo antes de la programación. No sé qué va a pasar pero solo una advertencia a todo el mundo.
8. Pruebe el funcionamiento.
Comentarios, comentarios o si necesita ayuda en este instructable, edificio por favor comentario abajo. Voy a intentar ayudarte lo mejor que podía en el mejor tiempo posible. Gracias. Por favor voten por este instructable.