Dispensador de Candy Drop! (2 / 4 paso)

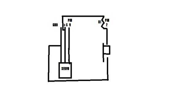
Paso 2: Construir el circuito.

Artículos Relacionados

Automático dispensador de dulces de Halloween

Automático dispensador de dulces de Halloween

mi proyecto de Halloween de este año es el Automatic Halloween Candy Dispenser® por TextforTreat®, CallforTreat® (con Twilio) y tecnologías. Por supuesto también se pueden producir desde un botón Rojo grande , pero ¿Dónde está la diversión en eso?Cua
Automatizado de Halloween Candy vaso / dispensador

Automatizado de Halloween Candy vaso / dispensador

Lamentablemente, nunca estamos a mano dulces en Halloween. En el pasado, nos iríamos a un tazón de dulces, tal vez con un cartel diciendo "por favor tome sólo uno". Pero eso es menos que ideal, obviamente. Se invita a abusos y es algo cojo.Decid
Interactive Magic Mirror con Candy Dispenser

Interactive Magic Mirror con Candy Dispenser

para Halloween 2012, he creado un espejo mágico interactivo. El espejo mágico tiene un sonar (PING))) sensor que detecta cuando los niños están cerca. Entonces el espejo dice algunas frases al azar y automáticamente cae caramelo al cubo. Reutilizar m
3D personalizado impreso dulces dispensador Topper

3D personalizado impreso dulces dispensador Topper

No hay nada más emocionante que personalizar tu colección de "Dispensador del caramelo" con obras de arte de museos famosos, se enfrenta a sus seres queridos o cosas al azar que 3D escaneado. Este Instructable demostrará cómo tomar un modelo 3D
Estrella de la muerte DIY Candy Dispenser

Estrella de la muerte DIY Candy Dispenser

Hoy te voy a mostrar cómo haces tu propio dispensador de dulces estrellas de muerte por unos $15! Todos los materiales pueden ser conseguidos de tiendas locales y el proyecto se puede hacer en un fin de semana!Materiales:Contacto Candy Dispenser: $8
Dispensador de Hi-mastique LEGO

Dispensador de Hi-mastique LEGO

después de hacer mi Lego Candy Dispenser, decidí que quería hacer algo para dispensar mi actual obsesión de caramelo: Hi-mastica!Yo también quería una máquina que dispensa el caramelo cuando la manija fue empujada, en lugar de cuando hacia afuera. Ot
Dispensador de dulces globo

Dispensador de dulces globo

INTRODUCCIÓNEste instructable fue creado en cumplimiento de la exigencia de proyecto de la Makecourse de la Universidad de South Florida (www.makecourse.com).El dispensador de mundo de caramelo es un sistema automatizado que utiliza el sensor de prox
Candypult--controlado por ordenador catapulta Candy

Candypult--controlado por ordenador catapulta Candy

Este proyecto está diseñado para atraer a personas que les gusta candy y son vagos--un grupo grande (de más de una forma?).Una catapulta eléctricos carga automáticamente un pedazo de caramelo desde el dispensador de la torre.  Al comando del control
Dispensador del caramelo PEZbot Instructables Robot

Dispensador del caramelo PEZbot Instructables Robot

cómo transformarse un lindo dispensador de dulces PEZ de conejito de Pascua en un dispensador de dulces de Pascua conejito PEZbot Instructables Robot fresco.¿Cabe en su bolsillo de la camisa? Echale un vistazo!¿Bastante barato no? Echale un vistazo!¿
Dirigido dispensador del caramelo

Dirigido dispensador del caramelo

Mi grupo de vida participa en una tradición de secreto Santa donde no se puede pasar dinero en los regalos. Tenía un montón de madera alrededor y consiguió inspirado por ver otras máquinas del gumball de tarro de masón. Decidí intentar hacer uno con
Dispensador de dulces Bot

Dispensador de dulces Bot

robot Tetrix máximo que ofrece dulcesPaso 1: Componentes del chasisPaso 2: Chasis sub conjuntoPaso 3: Montar chasis Directo en coche, Hola chasis separación con omni ruedas para permitir la entrega precisa de carameloPaso 4: Auge y electrónica Paso 5
3D impresa cinta dispensador insertar

3D impresa cinta dispensador insertar

¿Sabías que se desechan anualmente más de 100.000 dispensadores de cinta? Más de la mitad de estos dispensadores van a perder porque el núcleo de la cinta insertar va perdiendo! Hablar del despilfarro. Como profesor de secundaria de casi 15 años, pue
Dispensador de tocino

Dispensador de tocino

Después de rodar para arriba algunos tocino para mi Instructable anterior, "tocino en un Camping olla," era sólo cuestión de tiempo antes de que el dispensador de Bacon apareció (crédito a gilbertruiz encima en Threadless.com las).Paso 1: materi
Dispensador de bolsa de plástico

Dispensador de bolsa de plástico

Una caja de Kleenex vacía puede ser re-purposed como un dispensador de pequeña bolsa de plástico.Paso 1: Conseguir la caja de pañuelos vacíaUna vez que usted tiene una caja de tejido que está vacía, puede utilizarlo para almacenar bolsas de plástico