Cunas. Regalo para tu bebé (3 / 5 paso)

Paso 3: Realizar el trabajo

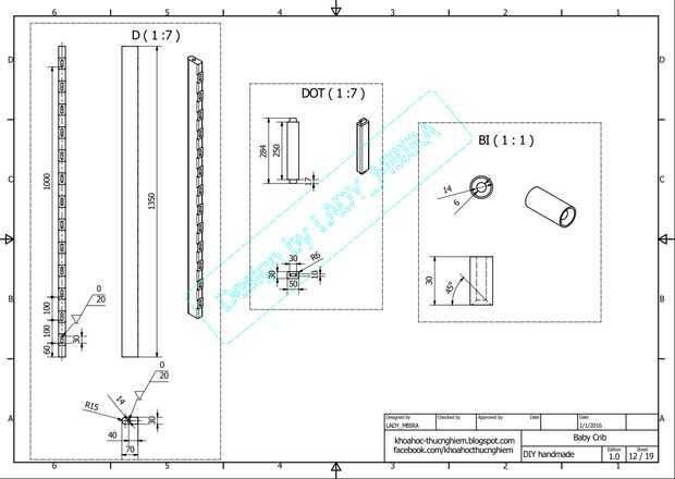
Preparar la madera de las dimensiones en el dibujo y la transformación de tal tamaño de conducta diseñado

Artículos Relacionados

DIY: Regalos para bebés: basura a tesoro

DIY: Regalos para bebés: basura a tesoro

Hola queridos visitantes de mi página!Hoy, he decidido hacer algunos regalos para los hijos gemelos de mi vecino y han utilizado algunos productos que ya he tenido en casa y hacen un divertido juego para los niños:) Por favor lea los pasos y ver el v
Meses de comidas - preparación para un bebé (o en cualquier momento te vas a querer comer pero no quiere cocinar...)

Meses de comidas - preparación para un bebé (o en cualquier momento te vas a querer comer pero no quiere cocinar...)

Con un bebé en el camino he sido abastecerte nuestros congeladores con una variedad de casa, sanas comidas caseras. De lo que he oído, probablemente no tendré mucho más tiempo en mis días para pensar qué hacer para cenar, comprar los ingredientes, la
Cómo extraer suficiente leche para su bebé

Cómo extraer suficiente leche para su bebé

por lo tanto, has conseguido traer una persona wee Linda en el mundo, averiguado algunos conceptos básicos, cómo cambiar un pañal, y cómo instalar un asiento de coche, y de repente, es el momento de volver al trabajo.  Supongo que '' eres americano,
DIY un dulce regalo para tus padres

DIY un dulce regalo para tus padres

Tengo a mi bebé hace 2 años. Me pensaba que es fácil ser un padre cuando era joven. Pero, no sabes, cuando tengas un bebé, usted nunca tendrá la misma sensación.Estoy lejos de mi padre cuando estaba en el colegio. A veces se llame y pregunte, "Cómo e
CAJAS de regalo para imprimir – patrón de corazón

CAJAS de regalo para imprimir – patrón de corazón

Esta caja de regalo para imprimir hace un regalo muy bonito para día de San Valentín como para ocasiones como cumpleaños. Regalo un mix de chocolate, muestra tamaño de botellas de perfume, un pedazo de corazón de fieltro, joyas, maquillaje y probable
Regalos para chicos

Regalos para chicos

chicos son difíciles de adivinar los regalos para. Es prácticamente una realidad.Ya que no soy un usuario pro, no puedo hacer una guía de regalos, pero soy lo suficientemente astuto para hacer una guía de regalos para chicos! Que disfrutes, si tienes
Cómo hacer una caja de 365. Mejor regalo para tu esposa o novia!

Cómo hacer una caja de 365. Mejor regalo para tu esposa o novia!

Cuál es para arriba chicos! Hice esta caja 365 para el cumpleaños de mi esposa. Su hizo de nuez y calabaza con cortes de 15 grados para formar el círculo. Escribí 365 notas para que ella ponga en él así que ella puede leer uno por día durante un año
Hacer una tumbona de casas gratis para tu bebé

Hacer una tumbona de casas gratis para tu bebé

---Descargo de responsabilidad: Por favor, lea!Este instructable es realmente una gran idea para reciclar algo que de lo contrario iría en un vertedero de basura.Te pido que leas esto, porque en ninguna manera condonar el uso de un asiento de coche o
Perfecto paquete de regalo para usted padre

Perfecto paquete de regalo para usted padre

este paquete consta de cupcakes de bigote y una tarjeta para usted padre que se envuelve perfectamente.Paso 1: para hacer la tarjeta como se puede ver el pic abajo puede copiar los mismo escritos sobre su tarjeta y eso es cómo su tarjeta estará listo
Sombrero hecho punto para un bebé recién nacido

Sombrero hecho punto para un bebé recién nacido

¿Conoces a alguien que está esperando a un bebé? Este es un punto fácil y rápido para producir un lindo regalo hecho en casa para la nueva llegada.Soy un calcetero bastante inexperto y no tengo mucho tiempo para hacer punto - de alguna manera cuando
Cuchillo, mi regalo para mi amigo

Cuchillo, mi regalo para mi amigo

Tengo amigo que vive en EE. Es un feliz padre de dos muchachos, gemelos. Se trata de un regalo de bautismo.Paso 1: materia En mi taller tengo un montón de viejos, dañado rueda bearins. Esto es bueno para cuchillería. Corte rodamiento y mi estufa para
Cómo hacer una caja de regalo para el día de San Valentín - manualidades de papel DIY

Cómo hacer una caja de regalo para el día de San Valentín - manualidades de papel DIY

Este tutorial es paso a paso las instrucciones, por lo que es muy fácil de entender.Lo invitamos a suscribirse a nuestro canal de youtube para ver videos futuro! https://www.youtube.com/User/estoreromaniaNo olvide como, comentar y compartir este proy
Azafata Navidad regalos para tus invitados - regalos hechos en casa

Azafata Navidad regalos para tus invitados - regalos hechos en casa

Usted puede hacer estos lienzos de Navidad en una hora y deje secar durante la noche. Vea este video con 2 rápido DIY que me encanta. Haga clic en ver, disfrutar y suscribirse. ¡ Es gratis! Puedes encontrarme enhttps://www.youtube.com/c/AMATEURDECORA
DIY Mini árbol de Navidad - regalo para los jóvenes creadores en casa

DIY Mini árbol de Navidad - regalo para los jóvenes creadores en casa

Regalo de los jóvenes creadores en su familia un árbol de Navidad impreso 3D con una tarjeta de regalo de RadioShack . Envié las piezas impresas 3D a un par de mis primos y amigos que tienen niños entre las edades de 11 a 15 años y una tarjeta de reg