Paso 5:






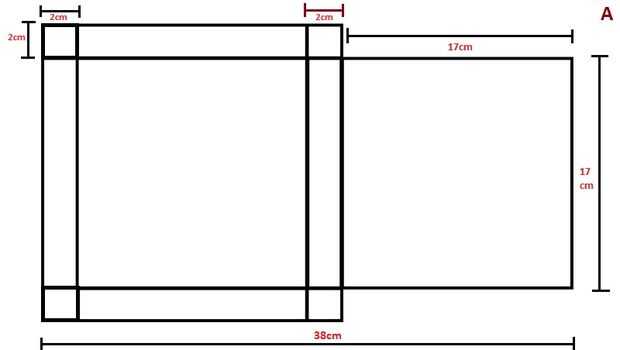
Toda la longitud es de 38cm (14,96 pulgadas).
Se trata de la caja que contiene el sostenedor de la lámpara, así que ahora tienes que doblar y cortar algunas partes de ella (imagen B): las líneas rojas son las que tienes que cortar y las líneas verdes son las que tienes que doblar.
Ahora pega los cuadritos con los rectángulos como se puede ver en las fotos. El cuadro está hecho!













