Construir una caseta de perro uno-marco aislado para menores $75 (1 / 4 paso)

Paso 1: Marque y recorte las piezas

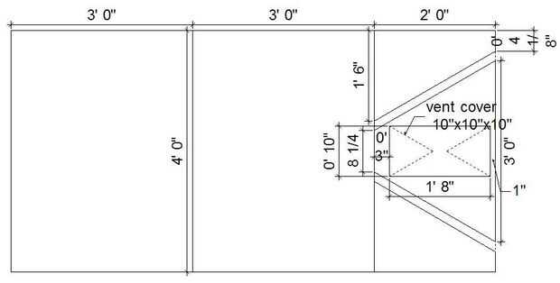
Hacer un sándwich con las dos láminas de OSB en el exterior y el foamboard dentro. Asegúrese de que los bordes se alinean, entonces Sujete las hojas junto con 4 clavos o tornillos para evitar que se muevan. Dibuja las partes de la hoja superior como en el primer dibujo a continuación. Entonces clavo y tornillo de fijaciones adicionales sobre cada pie en el borde de cada pieza a cortar. Esto mantendrá a las partes cuando se cortan. Cortar las piezas utilizando la sierra circular. Utilice la sierra sable para cortar las esquinas de la abertura de la puerta. Cortar dos triángulos equiláteros 10" en un lado de la puerta abertura de chatarra. Coloque las dos secciones del triángulo rectángulo para hacer la pared del fondo. (Clavó 1 x 2 para la parte superior e inferior dentro de los bordes para mantenerlos juntos). Por la cresta, corte cuidadosamente el 2 x 4 4' largo y 2 5/8" de ancho. Continuación, utilice el conjunto de la Sierra de mesa a 30 grados para convertir esta pieza en forma de diamante (ver dibujo 2).

Artículos Relacionados

Cómo construir una caseta de perro al aire libre: el retiro de perro

Cómo construir una caseta de perro al aire libre: el retiro de perro

bienvenida,Primero una nota, si te gusta este instructable por favor dame un + plus y hágamelo saber dejando un comentario y no olvides votar por mi en el concurso del mes de animales domésticos. Gracias, ahora sigamos con la diversión cosas.En este
Construir una casa de perro grande (o teatro) de salvamento 100% y materiales de desecho

Construir una casa de perro grande (o teatro) de salvamento 100% y materiales de desecho

Mi perro Barli, un neurótico Braco Alemán, fue la absoluta perdición de mi existencia para los primeros años que estuvimos juntos.Pero entonces algo sucedió. No sé si sucedió en el transcurso de un día o dos años miserables, pero Barli se convirtió e
Cómo crear una caseta de perro debajo del tanque de agua

Cómo crear una caseta de perro debajo del tanque de agua

cuando su perro es adicto a las alturas, usted debe tener que encontrar cómo complace sus deseos.El mejor lugar para hacerlo es por debajo del depósito de agua.En este instructables te mostrará el camino para hacerlo.Materiales:Techo impermeable.2 ho
Construir una caseta

Construir una caseta

no todo el mundo necesita un cobertizo de jardín.  Pero, si tienes no hay más espacio en la pared del garaje para que nuevo rastrillo de la hoja, si no encuentras tu paleta para macetas porque cayó detrás de bicicletas de los niños, y si tu coche tie
Construir una cuna de perro para alrededor $10

Construir una cuna de perro para alrededor $10

construir una cuna eficaz y duradera para su perro para alrededor $10Paso 1: Materiales y suministros · Tubo de PVC de 1 pulgada (dentro de diámetro determina el tamaño) horario 40 (pared gruesa). Pueden adquirirse en el hogar Depot para aproximadame
Corriente de jardín - construir una corriente o un arroyo Natural, filtro para estanque

Corriente de jardín - construir una corriente o un arroyo Natural, filtro para estanque

Hola,Construí una corriente de 200 pies / creek para hacer un sistema de filtro natural para mi estanque. Geotextil y epdm forro del estanque utilizado para este arroyo en cascada. Piedras y gravas de aspecto realista. Es sido un proyecto muy grande.
Cómo construir una casa de perro con aire acondicionado

Cómo construir una casa de perro con aire acondicionado

este es mi primer instructivo!  Yee haa!Este instructable le detalle de la casa de perro he construido este verano.  Esta casa de perro fue construida para dos itty bitty perros frágil como un refugio seguro de los perros más grandes y característica
Construir una cocina solar perro caliente

Construir una cocina solar perro caliente

se trata de una cocina parabólica que armé hace un tiempo, lamentablemente yo no puedo mostrar fotos paso a paso de su construcción. Sin embargo, es relativamente fácil de ver cómo se ponen juntos.Es un proyecto de gran ciencia. A diferencia de la ma
Cómo construir una casa de perro

Cómo construir una casa de perro

materiales:-Aprox. 250 tornillos al aire libre-(7) 4'x 8' hojas de madera contrachapada-(2) 4 "x 6" x 6'-(1) 4 "x 4" x 12'-(1) 4 "x 4" x 14'-(4) 2 "x 4" x 12'-(1) 2 "x 4" x 8'-(1) 2 "x 7" x 4'Her
Casa de perro Duplex muy robusta para menores $300,00

Casa de perro Duplex muy robusta para menores $300,00

Construí esta para el sobrino de mi esposa a casa de sus dos perros de caza hembra bastante grande.Tiene dos puertas 2'x 3' con una partición en el centro.Cada perro tiene una zona separada de 4'x 6'.Lata acanalada fue utilizada para el techo y las p
Cómo construir una rampa

Cómo construir una rampa

¿por qué construir una rampa?  Bueno, esta es una rampa para los corredores de BMX, skate y scooter de principiante. Esta rampa es buena para cualquier persona que quiera aprender algunos trucos o simplemente divertirse y meterse.  Es una manera fáci
Caseta de perro inteligente: Tardis Edition

Caseta de perro inteligente: Tardis Edition

Todo comenzó con mi Instructables de Halloween. Uno de mis apoyos era bufanda el cuarto Doctor. Desde entonces, yo he sido volver a ver la serie con mi hija. De alguna manera la idea vino a mí, en parte sólo de leer los diferentes concursos y pensand
Cómo construir una cueva de nieve para sobrevivir invierno

Cómo construir una cueva de nieve para sobrevivir invierno

En este Instructable, le daré los pasos para crear una nieve de la cueva que puede proteger durante varias noches en un ambiente de invierno.Elementos necesitan incluyen:Nieve - si usted vive en Costa Rica, usted probablemente no construir una cueva
Reciclaje de caseta de perro

Reciclaje de caseta de perro

¿Tiene un congelador antiguo? Reciclar en una caseta de perro fresco. Sus ya aislados 2.5 pulgadas gruesas. Cortar la puerta con un sawsall, éste no tenía ningún sello para arriba así que tomó un viejo colchón flotador y utilizado en la parte superio