Paso 3: Vamos a construir una parte de posicionador de soldadura 1


Aquí vamos. Queremos tener un Atomium que es bonito y estrecho con los ángulos rectos. Para ello vamos a construir una plantilla de soldadura que se va a celebrar los rodamientos de bolas en lugares mientras estamos soldar las varillas de 8 mm que les une.
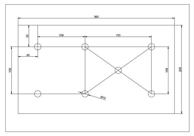
Me pareció una gran idea para hacer esto. Vamos a empezar la cara que contiene la bola del centro de la soldadura. Para ello, vamos a tomar una placa de acero y perforar los orificios donde van las bolas a sentarse mientras que vamos a soldar los palillos les. Vamos también a perforar 2 otros que son la misma distancia aparte y formar un cuadrado de los lados del cubo.
taladré agujeros de 15 mm. La distancia entre el centro de los agujeros que forma la Plaza es de 110 mm. La distancia entre el centro de los agujeros que forman el rectángulo del lado más largo del rectángulo es de 155 mm. y el agujero en el centro del rectángulo se ha colocado en la intersección de las 2 diagonales del rectángulo.
Este es el plan!
Con esta plantilla, será fácil mantener la pelota en el lugar correcto mientras se suelda. El siguiente paso es hacer un jig2 que contiene los palillos!













