Paso 2: Diseñar el gazebo con sketchup





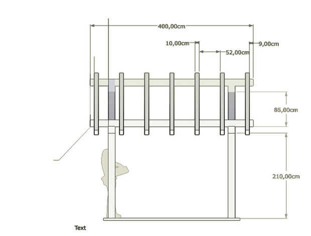
Porque vivimos en un ambiente alpino la estructura debe soportar mucha nieve. Para estar seguros usamos madera muy gruesa. Se muestra en imágenes a continuación son bocetos y presupuestos de las diferentes piezas (en centímetros). Si usted necesita las dimensiones medidas en pulgadas, sólo descargar el archivo SKP (fichero de origen de sketchup) y cambiar sus preferencias métricas. Si usted quiere ahorrar tiempo, puedes empezar con mi proyecto y transformación basado en sus preferencias o simplemente utilizarlo como :)