Paso 3: Método 2: cultivo en Adobe Acrobat



Si tienes el Adobe Acrobat completo puede ahorrar papel al cultivo antes de la impresión.
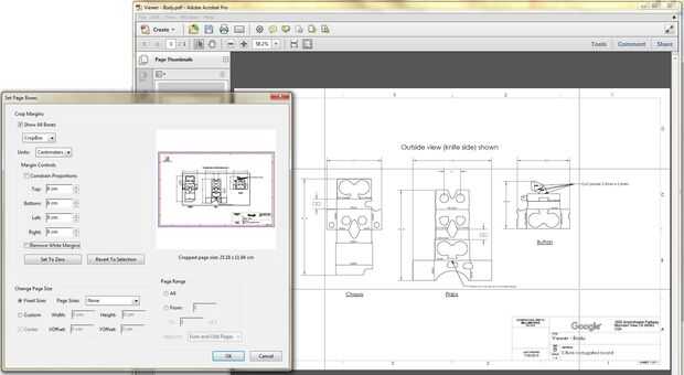
Haga clic en el icono de miniaturas de página en la parte superior izquierda. Haga clic derecho sobre la página en el panel miniatura y seleccionar páginas de cultivo.
Juego alrededor con los números bajo "Controles de margen" hasta la caja de cultivo en la previsualización a la derecha demuestra para arriba como siendo bastante apretada alrededor de los pedazos del cartón espectador. En centímetros, debe ser como se muestra:
- Top = 8cm
- Inferior = 8cm
- Izquierda = 9cm
- Derecha = 9cm
Van a imprimir y establecer escala de azulejo en 400%. Elegir etiquetas y marcas de corte en este caso.













