Cómo hacer una lámpara de pared (aplique) (1 / 6 paso)

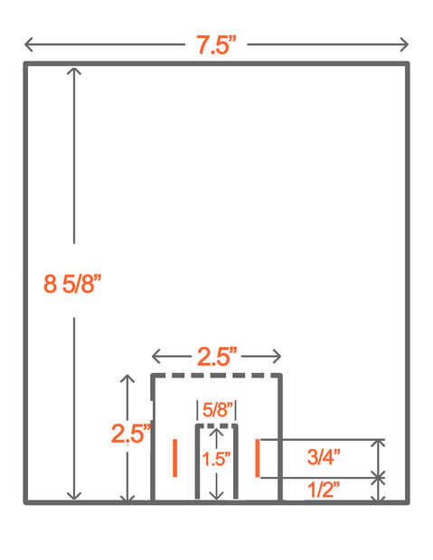
Paso 1: Hacer la base: paso 1

Dibujar la plantilla para la base en un pedazo de tablero de papel o póster.

Artículos Relacionados

Hacer una lámpara de pared personalizado de desechos

Hacer una lámpara de pared personalizado de desechos

el meta: utilizar como pocos nuevos elementos como sea posible para hacer una nueva lámpara.Materiales:Lámpara baño robabanPlanchas metálicas de desechoHe utilizado la parte superior del tambor de 55 galones que había cortado para hacer elprefiltraci
Cómo hacer una lámpara de pared Flash

Cómo hacer una lámpara de pared Flash

Esta es una luz radiante de pared, o supongo, simplemente una luz Flash! Fue hecho con madera fuente exclusivamente de mi cubo de chatarra!Usé tres arce cutt offs y arrancaron todas hasta 3/4" y luego había pegado para arriba en un bloque de carnicer
Hacer una lámpara de botella

Hacer una lámpara de botella

utilizando una parte de la tienda de hardware, puede hacer una lámpara de una antigua botella por unos diez dólares.Paso 1: Reunir los materiales y herramientas Se necesita:-una botella apropiada:Utilicé una botella de champagne como de cerveza refer
Cómo hacer una lámpara con rutinas programables

Cómo hacer una lámpara con rutinas programables

He estado usando la loción de la misma por un tiempo ahora. Un día vi la botella y pensé: - Mhmm... Esto sería una impresionante lámpara de mi escritorio. Y nació la Idea.Como una decoración bonita o simplemente por diversión, este Instructable es so
Hacer una lámpara de dormitorio de cuñas

Hacer una lámpara de dormitorio de cuñas

El reto era hacer una lámpara barata de cosas que ya tenía puesta alrededor.Materiales-1 paquete de calzas del cedro ($3 - $4 en Home Depot)-Algunos chatarra fina caoba-Madera contrachapada un poco-Las piezas de la lámpara pedí en ebay por unos $10-P
Cómo hacer una lámpara de neón (no realmente)

Cómo hacer una lámpara de neón (no realmente)

este instructable le mostrará cómo hacer una lámpara de neón fácil.Paso 1: materiales -2 LED-1 batería voltios agradable-4 cables de puente-1 paja-1 k resistenciaPaso 2: Paso 1 Insertar los LEDs en la paja.Paso 3: Paso 2 Agregar el resistor al positi
Cómo hacer una lámpara de Vodka (o cualquier otra botella de licor enciende para arriba)

Cómo hacer una lámpara de Vodka (o cualquier otra botella de licor enciende para arriba)

es más parecido a cómo hacer una lámpara de montaña.Uso de posavasos y un botón led lite, podría hacer fácilmente una botella de Vodka o cualquier otro objeto que es transparente como un cristal en una lámpara!Este instructable es muy fácil y no requ
Cómo hacer una lámpara de escritorio doble

Cómo hacer una lámpara de escritorio doble

Aquí encontrarás cómo hacer una lámpara de madera, el prosses es bastante fácil y no lleva mucho tiempo, no será muy caro ambos senos lo único que puede costar más es las luces del LED.Y luego podrás hacer una bonita lámpara doble!Paso 1: Reunir los
Cómo hacer una lámpara de aceite de la bombilla de luz

Cómo hacer una lámpara de aceite de la bombilla de luz

Os muestro cómo hacer una lámpara de aceite con una bombilla incandescente normal. Esto es una gran manera de reutilizar viejos quema focos en lugar de simplemente tirarlas a la basura. Elegante resulta una fuente de luz modernas en una más vieja. La
Cómo hacer una lámpara de aceite

Cómo hacer una lámpara de aceite

hacer una lámpara de aceite de una bombillaPaso 1: Materiales y herramientas Que necesitará una bombilla, una lavadora, un mecha o cuerda que se adapta a la lavadora y como alcohol para fricciones o lámpara de aceite de combustible. Para herramientas
Hacer una lámpara de foto

Hacer una lámpara de foto

Hice esta lámpara de fotos de los hermosos libros de Richard Scarry. Mis hijos ama sus libros. Mi idea es hacer una lámpara que crece con mis hijos. Cuando son pequeños una lámpara con los cuadros de Richard Scarry, entonces después de un tiempo la m
Cómo hacer una lámpara de suéter

Cómo hacer una lámpara de suéter

Hey que todos los ciudadanos encantador,Echaba de instructables y todos el asombroso que ustedes tienen. Así estoy después de un buen descanso y estoy con otro emocionante instructable para usted:).Lámpara de suéter...??? no sí... es broma. En este i
Cómo hacer una lámpara de un ciclo de hasta

Cómo hacer una lámpara de un ciclo de hasta

esta es una guía breve, paso a paso sobre cómo hacer una lámpara de ciclos de arriba. esta lámpara fue inspirada en marco tribal y fue creada con el material ya disponible. Sin embargo, el soporte de la lámpara es de Ikea junto con la bombilla.Paso 1
Hacer una lámpara de Lava casera

Hacer una lámpara de Lava casera

En este video tutorial voy a mostrar u hacer una lámpara de Lava en casa-Agregar 3/4 de taza de agua en botella de refresco-Rellenar el resto con aceite vegetal-Añadir alguna gota de colorante alimenticio (~ 10 gotas)-Rotura en media tableta de Alka-