Paso 4: Paso 4: crear la plantilla



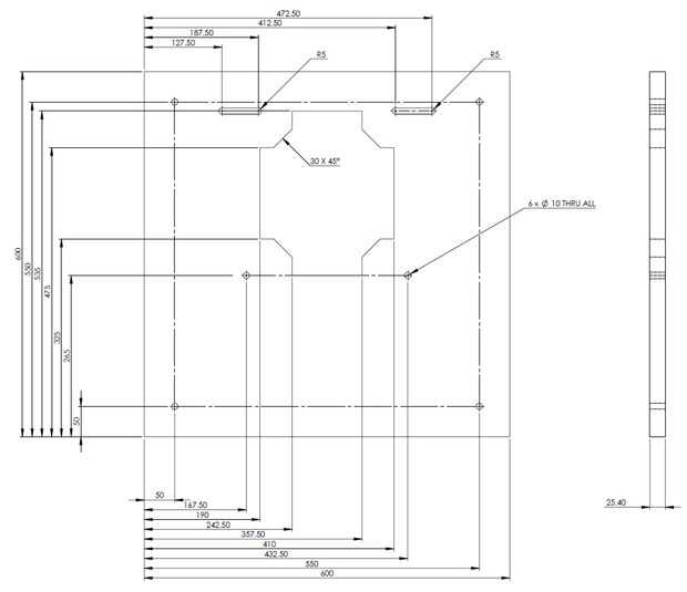
Los dibujos anteriores mostrará exactamente lo que necesita para hacer la plantilla y hay una lista de las piezas. Los lados y rondas están hechas de MDF de 1"(o cualquier otra madera barato). Tengo mi local patio madera para cortar las dos rondas para mí y eran bastante baratos. Los lados que me acabo de comprar como tableros cuadrados de 600 mm.
El siguiente paso te muestra algunas fotos de la plantilla montada.