Paso 2: preparación


Nota: utilizar madera o parquet en su garaje y uñas en, no el piso en tu casa.
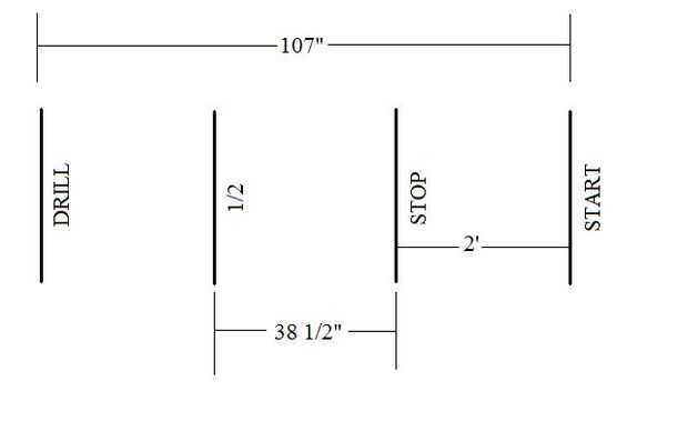
Marcar lo siguiente;
Comience con una línea y escriba taladro junto a él. Esto es donde se colocará el taladro.
Medición anterior línea ir 107 pulgadas (8 pies 11 pulgadas) y trazar una línea y escriba iniciar. Esto es donde comenzará el bloque.
De empezar a medir 24 pulgadas (2 pies) hacia la línea de taladro y escribir parada. Lo has adivinado, donde dejará el bloque.
Ahora de la parada mide 38,5 pulgadas hacia taladro. Escribir 1/2.