Paso 2: diseño






Antes de nada puede obtener, debe conseguir diseñado. Tengo suerte de tener acceso a software de CAD en mi universidad, por lo que pude mi diseño del modelo en el campus con CATIA. Sólo lápiz y papel trabaja muy bien, especialmente para un diseño relativamente simple como ésta.
Mi diseño original tenía manijas en la parte superior para que sea más fácil de transportar y puertas a ambos lados. Hice una cartulina de tamaño completo imitan para arriba de este diseño para tener una mejor idea del tamaño de la caja final y asegurarse de que las dimensiones que usé eran razonables. Esto resultó para ser una buena cosa que hacer, porque me hizo darme cuenta que yo probablemente no necesitaba ser tan grande como mi diseño original y me permitió mejorar características funcionales tales como el ángulo y el tamaño de la ventana de visualización, así como la distancia entre los agujeros del guante.
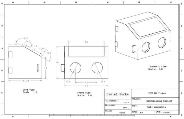
Con esta nueva información, había refinado mi diseño. Además de las modificaciones antes mencionadas, he decidido también que la puerta extra y las asas en la parte superior no eran necesarias.
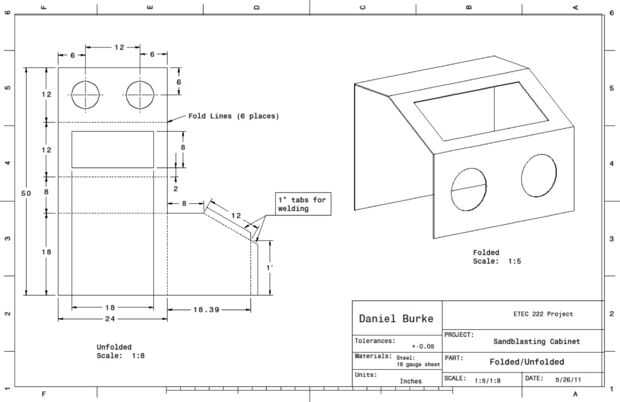
Con el diseño finalizado, es hora de empezar a pensar en materiales y métodos de fabricación. Quería reducir el importe total de la soldadura que tendría que hacer, así que decidí hacer fuera de una pieza grande (además de la pieza de la puerta) y hacer así que puede ser doblado en la forma de la caja y después soldado con autógena en las costuras cuando sea necesario. Hice un nuevo modelo de la caja de revelado para determinar cuánto material necesito y qué forma para recortar. Yo sabía que los bordes doblados tendría que estar doblado con una plegadora y acero calibre 16 que era el material más grueso que puede ser plegado con el freno de la prensa se está haciendo uso. También revisé el grosor del chorro de arena otro gabinete para comparar y terminó siendo sólo un calibrador o dos un grosor mayor de 16 (que podría haber sido debido a las capas de pintura en él) así que me sentí bien haciendo mina de 16 calibre.













