Caseta hexagonal (2 / 7 paso)

Paso 2: diagramas y planos de corte

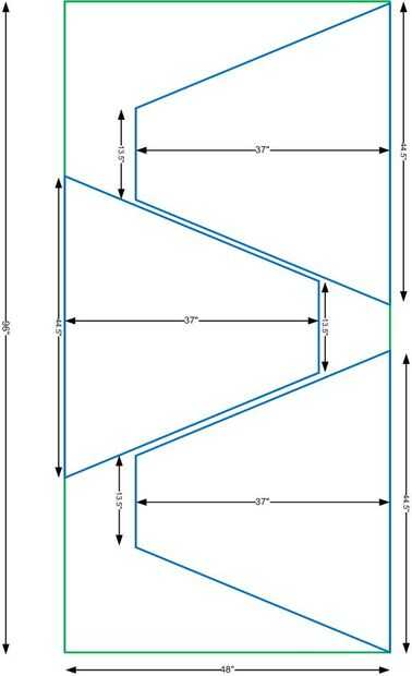
he utilizado algún software para averiguar la mejor manera de cortar las hojas de 8' x 4' de capas con mínimo desperdicio.
Esto era útil para todo el corte de capas. He utilizado Visio y Sketchup

Artículos Relacionados

Lámpara hexagonal de madera

Lámpara hexagonal de madera

Hacer esta lámpara hexagonal en 11 sencillos pasos!#stadslabrotterdamPaso 1: Se necesita: MartilloPegamento para maderaPegamentoUñas de gel:TornillosDestornilladorTaladro de manoReglaPapel de lijaImánPieza de metalBombilla E14 + cableFilamento para I
Caseta de perro inteligente: Tardis Edition

Caseta de perro inteligente: Tardis Edition

Todo comenzó con mi Instructables de Halloween. Uno de mis apoyos era bufanda el cuarto Doctor. Desde entonces, yo he sido volver a ver la serie con mi hija. De alguna manera la idea vino a mí, en parte sólo de leer los diferentes concursos y pensand
Diorama en un casette de cinta

Diorama en un casette de cinta

Este es realmente mi primer instructivo y también es la primera vez que he hecho un diorama, pero he estado queriendo hacer esto durante mucho tiempo.Pero tuve un tiempo difícil encontrar sugerencias de alternativas caseras para hierba estática / min
Cubierta hexagonal con materiales reciclados

Cubierta hexagonal con materiales reciclados

Tuve una visión de una cubierta de hexágono. Así que una decisión fue tomada para hacerlo una realidad. Contamos con varias camas de planta hexagonal y una mesa hexagonal, ¿por qué no una cubierta del hexágono? :)Fuentes:1. toneladas de chatarra y ma
Caseta casa DIY - usando recicla/reutilizar materiales

Caseta casa DIY - usando recicla/reutilizar materiales

Me pregunté si haría un perro relacionados con arte. Me dio pensar y decidió que quería estirar mis chuletas de fabricación y hacer una caseta de perro. Este es por lejos el proyecto más grande que he probado. Yo quería que fuera un Cayo casa de play
DIY MP3 Cassette o instrumento para adaptador de casete

DIY MP3 Cassette o instrumento para adaptador de casete

Un poco mientras que detrás que tengo muy emocionado cuando un instructable era un reproductor mp3 cassette llamado, pero me decepcionó bastante cuando me enteré que sólo era pegarse un reproductor de mp3 en un cuerpo de cassette. ¿Hice algunas miran
Luz nocturna de la caseta de perro

Luz nocturna de la caseta de perro

aquí es un divertido y luz de noche única que usted puede hacer del reciclado y reciclado. También es un divertido proyecto para hacer con niños, asumiendo que un adulto maneja el corte. Necesitarás estos artículos:+ Cartón diminuto+ Marcador permane
Cómo hacer una llave hexagonal de emergencia / Allen Wrench

Cómo hacer una llave hexagonal de emergencia / Allen Wrench

si usted necesita una llave allen en un sujetador, puede utilizar este truco para te marea hasta que encuentre uno de verdad. Solía este apriete el asiento de mi bici y lo montas unas casa de millas a un conjunto real hexagonal.Paso 1: materiales: 1)
Hexagonal, tuerca y arandela pulsera

Hexagonal, tuerca y arandela pulsera

En este instructable encontrará cómo hacer una pulsera fresca de las cosas que encontrará en la ferretería. Es fácil de hacer, requiere sólo un par de cosas y es una cosa muy singular que alrededor de su muñeca.Paso 1: Reunir los materialesPara este
Caseta de cubierta de techo iluminado solar

Caseta de cubierta de techo iluminado solar

Se trata de un Instructable explicando cómo construí mi chalet diseño único perro para mi golden retriever. No tengo mucho para brindarle le pensé convirtiéndola en un espacio muy cómodo para vivir ella haría un perro aún más feliz.Paso 1: conceptoPr
Del panal hexagonal estantes

Del panal hexagonal estantes

Ver el tutorial completo arriba.Estantes fáciles para $5!Materiales:Palitos (utilizados alrededor de 250 total para construir estos 2 estantes)Pegamento estupendoTinta para maderaMarcadorPapelCepillo de pinturaPaso 1: Hexágono único estante Forma de
Hexagonal Tuerca pulsera y pendientes

Hexagonal Tuerca pulsera y pendientes

Tuercas hexagonales Rock! No sé por qué pero a mi me encantan las tuercas Hex. Cuando era adolescente hice mi primer pendiente de tuerca hexagonal (que es uno de mis aretes favoritos y aún lo usa).El otro día fui a una ferretería y encontré los paque
DIY LED campana para un tanque 20 galones del acuario hexagonal

DIY LED campana para un tanque 20 galones del acuario hexagonal

Recogí un tanque del acuario hexagonal 20 galones usado en Craigslist por 5 dólares. Este es el tanque de tamaño perfecto para mis ranas 2 claras. El tanque de vino con unos focos de calor y platos pero no tenía superior a él. Ranas blancos como un t
Hexagonal caminó taburete de aluminio

Hexagonal caminó taburete de aluminio

Este taburete resultó de un intento de utilizar herramientas de metales manual para realizar un taburete elegante y funcional diseño. Utilizar simplemente un freno de la flexión, un esquileo del metal, una pistola perforadora y remache, puede constru