Paso 1: Los planes y materiales



El único material que necesitas es pedazos grandes de tarjeta que por lo menos dos capas gruesas. La pieza más grande mide 83 x 60cm por lo que necesitará buscar cajas grandes, que es más probables ser encontrado en los compartimientos donde empresas tienen grandes elementos entregados, como tiendas de muebles.
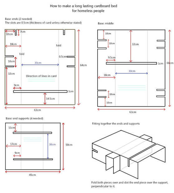
Hay once piezas necesarias en total y se puede ver cómo tienen que medir y cortar en estos planes.
Ha sido diseñado para que sea lo suficientemente grande para una persona, pero también lo suficientemente pequeño como para ser transportable en caso necesario.
Es importante conseguir cartulina bien fuerte como se ha visto a debilitar debido a montaje y desmontaje. El tipo ideal sería 3 capas tarjeta o tarjeta que puede decir es mucho más rígida. La otra cosa es que debe ser montado y desmontado con cuidado para no doblar la tarjeta.
Para hacer el corte, todo lo que necesitas es un agudo cuchillo, un par de tijeras para respaldo y un tablero grande para cortar en donde no importa si te rascas lo (había rescatado uno de cocina desechada).
La parte superior tiene cuatro piezas, la base tiene tres más cuatro soportes para asegurar la estabilidad y larga vida.
Tratar de encontrar una bolsa de plástico grande para poner todas las piezas y un pedazo largo de cuerda para envolver para arriba y crear la manija para llevar (véase más adelante).
Observe la dirección de las líneas de la tarjeta. Es importante que coloque los esta manera para que cada pieza vertical tendrá todas las líneas de tarjeta vertical, que es necesario para la estabilidad.
También es la hoja de instrucciones de montaje que puedes imprimir para dar a los usuarios de las camas.