Paso 1: Diseño /Layout







El diseño ha sufrido muchas iteraciones mentales antes de llegar al producto final. Origially, tenía un lado pivotante cama murphy y una instalación de carpintería compleja con cajones construido en mentalised. Ambos de estos diseños tenían permanencia mucho más que el diseño final. Me decidí por algo temporal y modular como quería utilizar la furgoneta para otros fines que solo camping.
Los requisitos/restricciones/objetivos de diseño fueron los siguientes:
Colchón
Un doble o queen colchón cabe en la furgoneta pero hay poco espacio para cualquier otra cosa. También, como yo también soy muy alto un colchón más largo es bueno para mí (rey individuales son más largos que colchones dobles). Colchones de tamaño especial caravana están también disponibles pero son más cortos que los dobles. La experiencia también demuestra que mi novia y yo podemos dormir cómodamente en un solo rey.
Compramos un rey solo colchón hace bastante tiempo con el fin de construir un marco para él más adelante. Nos hemos estado acampando un par de veces para dormir con el colchón directamente en el suelo de la furgoneta. El problema aquí es que el colchón tenía que sentarse entre los arcos de rueda que deja poco espacio para cualquier otra cosa.
Portabilidad
Es importante que la cama se desarme en pedazos pequeños para que no tomaría mucho espacio cuando no esté en uso. Quería utilizar un diseño semi tradicional que usa listones ya que son buenos para la higiene de la cama (lo que permite la circulación de aire por debajo) puede también ser enrolladas en un paquete que no ocupa mucho espacio.
Quería no utilizar un perno/tornillo de fijación de método para que la cama podría ser montar/desmontar sin herramientas.
Accesibilidad y almacenamiento de información
La cama también fue diseñada alrededor de la necesidad de tanto espacio libre por debajo de lo posible para proporcionar buenos espacios para el almacenamiento de alimentos equipo camping. Yo soy un gran fan de utilizar cajas de leche para almacenar cosas, así como la unidad de almacenamiento estándar en el diseño se utilizaron cajas de leche.
Diseño
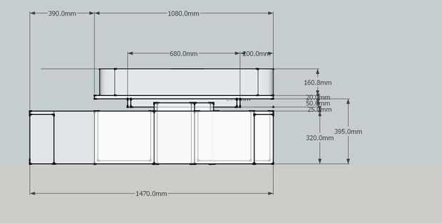
Uso de Sketchup, redactó el contorno de la planta de la furgoneta. El plan incluyó los pasos de rueda para asegurar que el marco de la cama borra esta parte.
El colchón fue importado en la parte superior de los arcos de rueda y alineado a la derecha de la furgoneta. Esto deja un paso a la izquierda de la furgoneta. Esto parece el lado lógico para alinear cosas como que aparcar de lado izquierdo a la cuneta en Australia. Contenedores (cajas de leche) se colocan por debajo. Y por último, la bancada sí mismo fue dibujado alrededor de eso.
Los dibujos a continuación muestran los dibujos utilizados para la adquisición de los materiales y el final (prestados) muestra la versión como construida. Modelo está disponible aquí o en 3dwarehouse.com