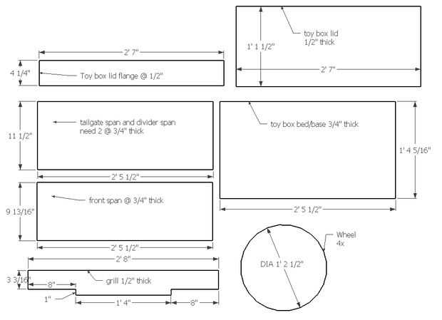
Paso 1: Cortar el marco de la cama principal y montar por las dimensiones de los planes


Las dimensiones de este somier de dejan una abertura que es 29 1/2". esto cabe un colchón estándar de niño/cuna. Después de cortar al espaciador de 29 1/2" piezas, las piezas del carril lateral y la caja de juguete base, que montado con tornillos de agujero de bolsillo. Usted puede utilizar otros métodos o tornillos y es una buena idea pretaladrar los agujeros, pegamento y tal vez tapa los orificios con una clavija de madera para evitar que pequeños dedos cogiendo en tornillos madera etc....
Utilice el material de 3/4" para estos miembros de la estructura principal y guardar los materiales de 1/2" para las plantillas a continuación.