Paso 2: cortar





Si dimensiones partido mina y corte por láser los archivos .dxf de carpeta (o último paso de este instructable) y dar al laser empresa de corte a lo largo de con. 093" hojas de acrílico grueso.
Si se cortan a mano mida el tamaño de la hoja deseada asegurarse de añadir 2 veces el espesor a su medida. Es decir, meta = medida + 2 *(Material thickness)
Regla de la endecha a lo largo de la línea de corte deseada y puntuación varias veces con cuchillo o tachuela (cuanto más mejor). Extender los recortes para el final del vaso para darle un buen punto de ruptura.
Set acrílico sobre una mesa acorralada con la chatarra colgando. Aplicar presión hasta los broches de cristal, si marcó lo que suficiente puede romper solamente a lo largo de la línea. Después de repetir este proceso con todas las partes deben tener cinco pedazos, 4 lados y una azotea.
Si haciendo opción 3 procede al siguiente paso
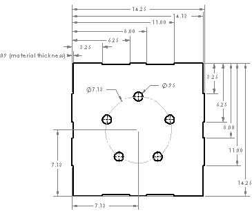
Ahora siguiendo el esquema im (fotos) lo siento me olvide de etiqueta en el archivo proceda a hacer los cortes más pequeñas en el acrílico (recomiendo anotarlos entonces cortar con un cuchillo o dremel herramienta). Esta es la parte más difícil. Rápidamente decidí que sólo he cortado después de arruinar algunas hojas de acrílico del laser de mina.
Para mayor precisión de corte a mano echa un vistazo este instructable, esta dosis de chico realmente buena sobre describiendo un gran método utiliza cortes como este
Prestar especial atención a cuatro pasos (de su instructivo) y