Paso 1: problema

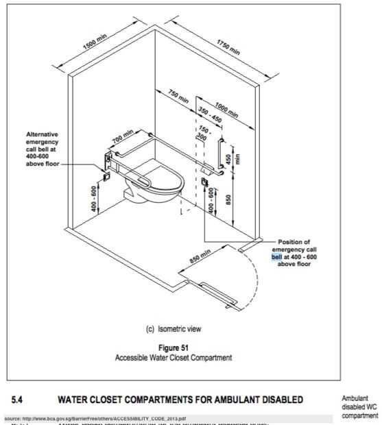
Normativas de construcción (casi universalmente) exigen el cumplimiento de un código de acceso de alguna forma, que a menudo requiere la instalación de una "Emergencia llamar Bell" o semejantemente nombrado dispositivo en aseos y tal para las personas con discapacidad. Por ejemplo, como parte de las "disposiciones sanitarias" para edificios en Singapur, la especificación dice así:
"... La campana de llamada de emergencia debe estar equipada con un botón impermeable o
acordes de pull para activar la campana.
La Anunciación de la llamada, en su caso, se aportará,
(a) una campana llamada situada fuera del aseo accesible; o
(b) un zumbador en la oficina del cuidador; o
(c) una emergencia llamar campana situado fuera de la habitación o una señal acústica a la oficina de gestión.
..."
y así sucesivamente.
Aparte del "zumbador" y "campana" es bastante arcaica, estas disposiciones van a menudo sin supervisión desde los cuidadores / personal está obligado a estar presentes donde se colocan los zumbadores. Personal a menudo se encarga de otros lugares.
Llamadas van a menudo no respondidas cuando la gente necesita ayuda.