Paso 1: Planificar el trabajo: modelos y medidas






El corazón del proyecto es que algunas medidas exactas y una imagen clara del resultado final.
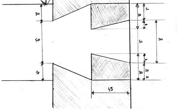
Comencé por diseñar el conjunto de 3 ejes doble cola de Milano hizo escala 1:1 dibujos de él.
Procedió con el diseño del resto de las piezas.
Resultó en 4 patas, un conjunto de corredores para los lados (uno en la parte superior que enclavamientos simplemente con una muesca) y otro en la parte inferior con los dientes así como de corredores mediados 2 (superior e inferior, encajar)
También planea colocar un tornillo de banco para madera.
Tomando en cuenta el tamaño de la mesa y la forma en que está construido, diseñó un plan de corte y hace estimaciones sobre cuánta madera que necesitaba. Un viaje a la tienda de hardware para comprobar qué tamaños estándar tienen y me lo puse.
Todo es pino.
Las patas son de 90x90mm, corredores de fondo 90 x 45, corredores superior 90 x 30.
Con la madera comprada, siguiente paso es cortarlo todo.