Banco circular portátil (2 / 5 paso)

Paso 2: Dibujos técnicos

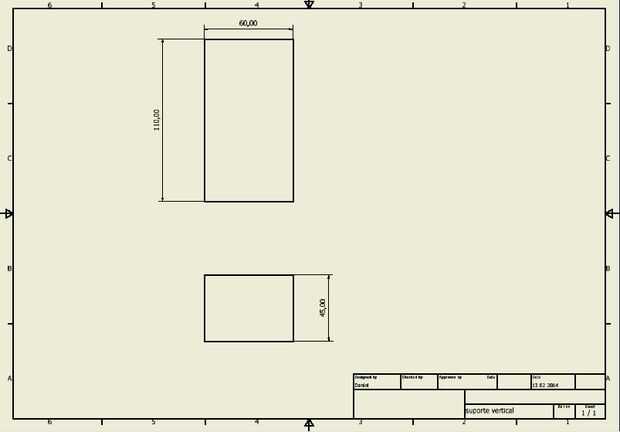
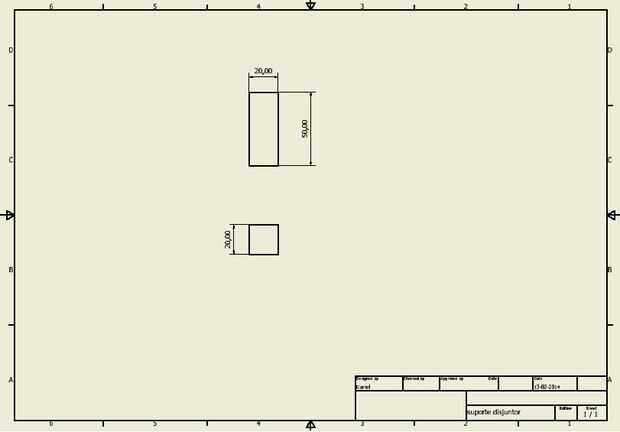
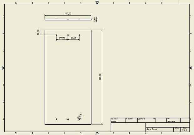
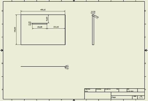
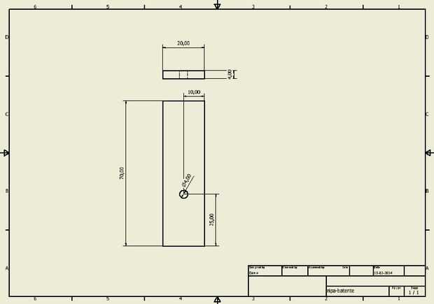
Estos son todos mis dibujos para la construcción de mi banco circular, con esto, puede reproducir cada piezas de madera, necesitarás un taladro destornillador y algo que cortar la madera como un otro banco circular o una sierra.

Artículos Relacionados

Banco de trabajo portátil multifuncional

Banco de trabajo portátil multifuncional

Estoy en necesidad de un banco de trabajo portátil, y es en mi mente durante mucho tiempo. Fui a través del diseño de un caballete de aserrar y hace ya un par de ellos. Ahora es el momento para hacer la tapa de tabla y armar la mesa de trabajo.Paso 1
Banco de trabajo portátil de madera

Banco de trabajo portátil de madera

quería un robusto Banco de trabajo portátil que estuvo rápido de montar y desmontar, montar, y que yo podría caber fácilmente en el coche. Necesitan ser lo suficientemente ligera para una persona a mango, pero lo suficientemente fuerte como para llev
REUTILIZAR su vieja batería del ordenador portátil para hacer un banco de potencia

REUTILIZAR su vieja batería del ordenador portátil para hacer un banco de potencia

Hace unos meses mi batería del ordenador portátil de Dell no funciona. Siempre desenchúfelo de la fuente principal de AC, el portátil apagado inmediatamente. Después de algunos días de frustración, me sustituye la batería y mantiene los muertos uno (
Banco de trabajo portátil

Banco de trabajo portátil

siempre tengo todas mis cosas en el piso. Así que decidí hacer un banco de trabajo. Pero porque yo no pude ponerlo en el garaje que pensé que me iba a movabable. Es un proyecto difícil. Tarda unos dos días para hacer. Y es algo grande y pesado así qu
Batería casera Banco de energía portátil para el móvil

Batería casera Banco de energía portátil para el móvil

La batería de respaldo de banco de energía portátil casera para móvil con:Células de batería de titulares, 2 o 3 baterías 18650, MC34063Presentado aquí es el sencillo circuito de convertidor (Step-up) de un impulso, que puede fuente de 5VDC constante
Convertir su vieja batería del ordenador portátil en un banco de potencia

Convertir su vieja batería del ordenador portátil en un banco de potencia

En este proyecto le mostrará cómo convertir una batería de un portátil antiguo en un banco de potencia que puede cargar un teléfono ordinario de 4 a 5 veces con una sola carga. Vamos a empezar!Paso 1: Vea el video!El video le da una visión básica que
¿Cómo volver a utilizar la batería del ordenador portátil para hacer Banco de potencia para smartphone?

¿Cómo volver a utilizar la batería del ordenador portátil para hacer Banco de potencia para smartphone?

HOLA A MIS COMPAÑEROS... (SOY WAQAR)...!HOY, TE VOY A MOSTRAR CÓMO HACER UN BANCO DE ENERGÍA CON PILAS DE LAPTOP.¿POR QUÉ?HOY casi todo el mundo tiene un ordenador portátil y cada ordenador portátil tiene una batería.DESPUÉS DE USAR DURANTE ALGÚN TIE
Construir un banco de trabajo portátil de cualquier tamaño que usted quiera

Construir un banco de trabajo portátil de cualquier tamaño que usted quiera

Un banco de trabajo es única como la persona que lo utiliza. Aquí están las instrucciones para construir un banco de trabajo portátil. Cuando digo portátil, quiero decir que se lleva a cabo junto con 12 tornillos y puede desmontarse para la mudanza,
Banco de la energía de la batería del portátil reciclado

Banco de la energía de la batería del portátil reciclado

reciclar su vieja batería del ordenador portátil... y hacer 7800mah poder BancoPaso 1: tienes que necesita la batería del ordenador portátil viejo tienes que necesitabatería del ordenador portátil viejoy el viejo circuito de banco de potencia...y la
Viejo "Portátil" cinturón lijadora Banco Monte

Viejo "Portátil" cinturón lijadora Banco Monte

un amigo me dio una viejo pesada lijadora portátil de artesano.  La lijadora fue diseñada para mesa de pesado o incluso piso lijado.  Yo nunca usado debido a su influencia.  Quería una lijadora superior Banco para diversos proyectos.  Limpiaron la li
Altavoces portátiles de Lasercut

Altavoces portátiles de Lasercut

Este instructable es construir un altavoz portátil de Lasercut 2.0. He pasado una cantidad considerable de tiempo en buscar en diferentes tipos de amplificadores, controladores, fuentes de alimentación, gabinetes.Como este fue uno de mi generación in
Boombox/altavoz portátil con Bluetooth

Boombox/altavoz portátil con Bluetooth

por lo tanto, tienes un altavoz Bluetooth pero su falta de volumen y bajos, este proyecto me costo bajo £40 ($60) y paquetes de un golpe fuerte. el proyecto me tomó unas vacaciones de verano enteras así que alrededor de 6 semanas. la duración de la b
Hacer una estación de trabajo portátil

Hacer una estación de trabajo portátil

Después de haber terminado mi router CNC (ver mi otra Instructable), mi taller (un pequeño cobertizo en el patio de mi casa 3 x 6 m), se convirtió en bastante completo. Las otras herramientas que puedo ajustar allí son una pequeña mesa de la sierra,
Elevador de plataforma portátil de madera

Elevador de plataforma portátil de madera

Gracias por comprobar hacia fuera mi primera vez instructivo!La idea para este proyecto provino de un dolor en mi cuello. Encontré que trabajo durante largos períodos de tiempo en mi portátil sentado en un escritorio a adoptar una postura muy mala a