Paso 2: El comienzo

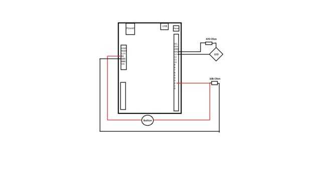
Antes de comenzar con el proyecto en sí, me gustaría que le muestre el cableado básico para los LEDs y Switches.
En el Arduino Software, puede encontrar ejemplos. Por favor, abra "Digital" y haga clic en "Botón".
Este es el cableado que utiliza para hacer el trabajo. Tuve que agregar las tomas y cambiar el código a interrputpins.
En la imagen puede ver el cableado básico del ejemplo.