

Resulta completo altavoces gama de Driver solo está haciendo una reaparición en el mundo audiófilo. Junto con un amplificador eficiente podrá disfrutar de música de grado audiófilo para muy barato (< $150-200).
Dado que los recintos del altavoz pueden ser bastante complejos y que no estoy dotado de suficiente madera herramientas de trabajo para hacer realidad un hermoso recinto he optado por un diseño de bafle abierto. Estos diseños son en cierta manera infalible porque tienden a ser simples pero no ser decieved, puede realmente suenan bastante sorprendentes ya que realmente pueden abrir los medios y altos.
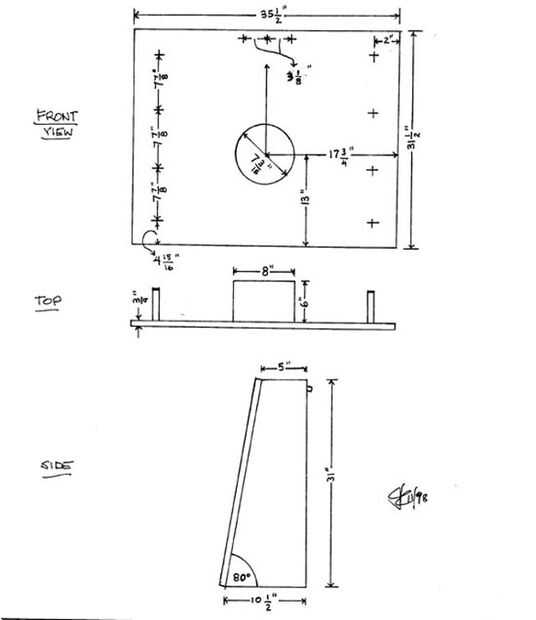
Es una crítica de los diseños de bafle abierto y diversos diseños según los informes, tienen cantidades diferentes de reproducción de graves y ampliación. Elegí los diseños bafle abierto JE Lab porque había algún consenso que estos altavoces pueden proporcionar una cantidad sorprendente de bajo. (También el diseño parecía muy factible). Sin importar el diseño, asegúrese de que elegir uno que es bastante amplia. Cuanto más amplia sea la placa deflectora la extensión más baja podrás obtener de un driver fullrange. También el tamaño del controlador de altavoz debe estar conectado con el diseño del bafle. Diseño del laboratorio JE es perfecto para un controlador de 8".
Paul de http://wildburroaudio.com es un productor local de conducir sola gama completa y su modelo de Betsy son no sólo un precio muy razonable pero también trabajado fantásticamente bien con este diseño de altavoz. Le recomiendo que Compruebe hacia fuera sus controladores. También es un chico excepcional sólo preguntar a.
Materiales que usted necesita:
-Madera contrachapada idealmente por lo menos 3/4" densamente. (Mucho mejor que el MDF o aglomerado tablero)
-Jigsaw
-Pegamento de carpintero
-Los tornillos de
-Taladro portable
-Banana hembra conectores (opcionales, para la conexión al amplificador)
-Soldador y estaño (opcional)
-Alambre de calidad audiophile (oxígeno libre cobre también opcional, recomendado)