81 puede FIFO - a granel puede dispensador / organizador (2 / 9 paso)

Paso 2: Cortar las piezas de madera contrachapada

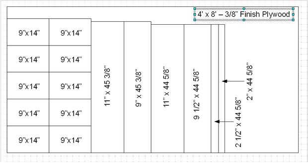
Usar un lápiz y una escuadra para marcar el patrón por encima de la madera contrachapada. Recuerde el viejo adagio para medir dos veces y corte una vez. Si te equivocas por todavía tiene unos 22" de madera contrachapada de izquierda para recuperar. Usé una sierra circular para cortar las piezas hacia fuera, pero si lo desea puede utilizar una sierra reciprocante. Creo que puedo conseguir un borde de aspecto más recto, más profesional usando una sierra circular vs una sierra reciprocante. De cualquier manera sólo tenga cuidado de no cortar los dedos. No te olvides de tener en cuenta la anchura de la hoja al marcar la madera contrachapada. Cuando haya terminado deben medir las piezas cerca de lo que se muestra en el patrón.

Usted también necesitará cortar 9 piezas que miden 4 1/2 "x 2 1/2" (no se muestra en la imagen) para el paso 7 del proyecto.

Artículos Relacionados

3 cosas que usted puede hacer desde latas Pringles

3 cosas que usted puede hacer desde latas Pringles

Hay muchas cosas que usted puede hacer desde latas de Pringles. Probablemente que ya sabes que puede Pringles es perfecto para almacenar los espaguetis. También es ideal hacer un altavoz o tienda rollos de cuerda.En este Instructable, miramos 3 cosas
MP #14: Al aire libre Paracord y cinta organizador Mk.IV

MP #14: Al aire libre Paracord y cinta organizador Mk.IV

Hola esta semana estoy compartiendo con ustedes una versión de mi forma favorita de paracord de organizar (y cinta aislante) para uso en exteriores.Cuando fuera de casa generalmente llevo una buena longitud de paracord (o línea fuerte similar) así co
Organizador de ramen FIFO / dispensador

Organizador de ramen FIFO / dispensador

Hola. En este instructable. Demostrará cómo hacer un organizador dispensador para fideos ramen. Este proyecto puede ayudar a ahorrar espacio y hace fácil seguir el sistema FIFO. FIFO o First In, primer Out es importante en muchas disciplinas, incluye
Dispensador de la taza de cerveza puede baño

Dispensador de la taza de cerveza puede baño

es difícil encontrar un dispensador de la taza de baño de pared de buena calidad. Los pocos modelos hacia fuera allí están hechos de plástico poco atractivo. El estilo pop-up de dispensador toma espacio en el mostrador y resortes desgaste y herrumbre
QuickSilver (organizador de cubiertos puede munición)

QuickSilver (organizador de cubiertos puede munición)

en los últimos años he trabajado como guía de rafting, nos hemos ido a través de al menos dos sistemas de almacenamiento y organización de diferentes cubiertos.  La primera fue azarosa.  La segunda fue organizada pero, a pesar de algunos llamándolo "
30 maneras usted puede ahorrar dinero y tiempo

30 maneras usted puede ahorrar dinero y tiempo

Todos queremos ahorrar. Aquí hay formas sencillas de 30 todos, incluyéndote a ti, pueden seguir para hacer exactamente eso!Nota: Este instructable es escrito por una persona normal como tú.Paso 1: Listo, Set, Go!30 maneras que usted puede ahorrar tie
10 cambio de vida vida Hacks - puedes probar ahora mismo!

10 cambio de vida vida Hacks - puedes probar ahora mismo!

Aumentar las posibilidades de encontrar un teléfono perdido y dormir mejor a partir de esta noche, 10 lifehacks cambia la vida, que usted puede utilizar ahora mismo.Asegúrese también de revisar mis otros videos de Hack de vida:10 Hacks de la vida par
5 cosas que usted puede hacer de bombillas de luz

5 cosas que usted puede hacer de bombillas de luz

Si tienes bombillas viejas ahí, tal vez usted puede hacer algo fresco fuera de ellos.Hay muchas cosas que usted puede hacer.En este Instructable, tenemos un vistazo a 5 de esas cosas.Si no puede ver una versión en video de este Instructable, aquí hay
Puede el arte: Un camino para reciclar algunas latas

Puede el arte: Un camino para reciclar algunas latas

todos usamos algunas conservas de vez en cuando.  Y todos probablemente utilizamos latas vacías para un propósito u otro.  Este instructable muestra cómo decorar latas para ser utilizado como organizadores de lápices, bolígrafos, pinceles, etc..  Es
Cerámica del condensador nombre signo - también conocido como qué se puede hacer con condensadores de cerámica de 55.000!

Cerámica del condensador nombre signo - también conocido como qué se puede hacer con condensadores de cerámica de 55.000!

Probablemente llegaste a este Instructable preguntándose "¿Qué es esto ? ¿condensadores de 55.000? Eso es mucho!"Así que aquí mostrará usted cómo hacer un signo de marco de cuadro impresionante de su nombre, usando, además, muy gran cantidad de
'Puedes oírme ahora?' Teléfono broma

'Puedes oírme ahora?' Teléfono broma

broma gran teléfono base.  La víctima no puede averiguar qué está pasando - algo anda mal con el teléfono.  Pueden escuchar las llamadas, pero la persona que llama no puede escuchar. (Alternativamente la broma puede ser jugada con las funciones inver
Sosa puede generador de hidrógeno para energía alternativa

Sosa puede generador de hidrógeno para energía alternativa

hacer hidrógeno bajo demanda de aluminio activado y el agua.Este invento ha sido patentado!Utilizar una gota de metal líquido que he comprado de eBay y aluminio de un refresco puede producir hidrógeno del agua.Esta reacción resuelve el problema de al
Cómo Ikea puede mejorar mi vida!

Cómo Ikea puede mejorar mi vida!

Este es mi "espacio", y como se puede ver es bastante escasa. Esta es mi historia en pocas palabras: mi padre fallecido en mayo, dejándonos sin nada para que mi madre se ha alejado con mi hermanito Michael, a una casa más asequible... No querien
¿Qué se puede hacer con una impresora 3D?

¿Qué se puede hacer con una impresora 3D?

Primero recibí una pluma 3D que era genial. Luego compré una impresora 3D. Muy muy chulo. Después de un tiempo me di cuenta no había final lo que pude imprimir, aunque varios de ellos son muy difíciles de quitar correctamente. Pensé en que compartir