Paso 5: manual de reparacion

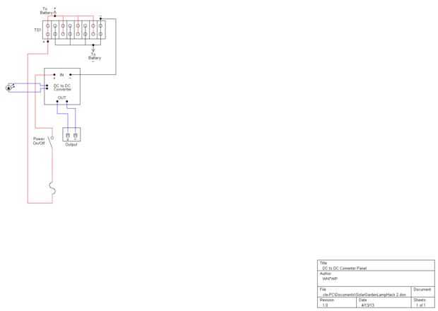
Todo lo que está sucediendo aquí es encienda y el circuito hace el resto.
Todos los cables a la Junta han sido alargados o acortado según sea necesario para ajustarse al panel.
Un interruptor en el cable de alimentación elimina el tapón encendedor de cigarro como el + y - los cables son difíciles a una regleta.
Un Anderson poste conector, en vez de lo que he utilizado, sería suficiente para proporcionar protección de la polaridad.
Esquema via TinyCad un programa gratuito de Cad electrónico desde SourceForge.com. Google - CAD.com pequeña